Pukekohe — Custom Design

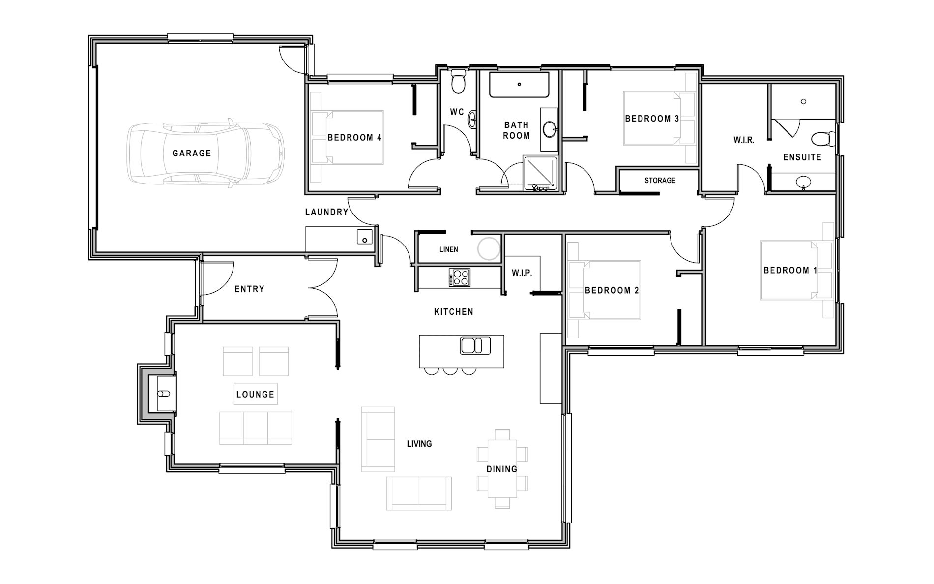
Number of bedrooms
Bedrooms 4
Number of bathrooms
Bathrooms 2
Number of living spaces
Living spaces 2
Number of toilets
Toilets 2
Carport or Garage Size
Carport or Garage Size 2
Floor size:
215m²
8 Pipi Crescent, Tuakau

Open hours

Sat
11.00 am - 4:00 pm
Call us at
09 238 0696 - to book an appointment.
Other times by appointment
Get directions
Features

Nestled in the tranquil Tuakau area, this home embodies warmth and simplicity. Crafted by the Versatile Pukekohe Team, it's more than just a house; it's a sanctuary for families to thrive. From the meticulously tiled acrylic shower to the charming brickwork, every detail is thoughtfully designed for the utmost comfort. With innovative features like hydronic heating and quickset flooring, modern living reaches new heights without compromising on coziness.

View more show homes

Palmerston North – Konini 67m²

Palmerston North Konini
Number of bedrooms
2
Number of bathrooms
1
Number of Living Spaces
1

Crisp, clean lines define the design of this modern home.

More

Pokeno – Custom 249m²

DSC 2761
Number of bedrooms
4
Number of bathrooms
2
Number of Living Spaces
2
Carport or Garage Size
2

This show home is now permanently closed.  Check out new show home in Hitchen Road!

More