Dunedin — Hobson

Hobson
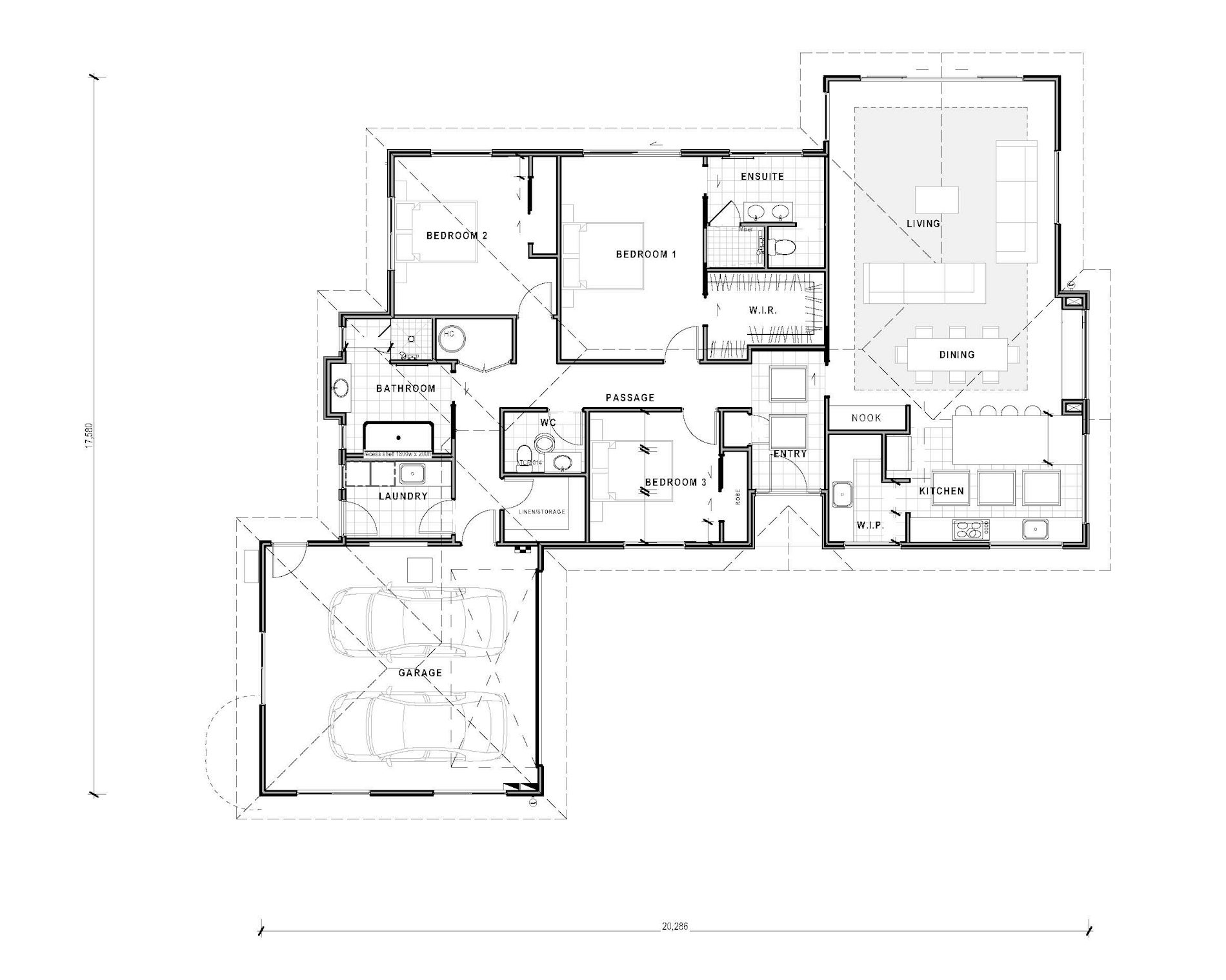
Number of bedrooms
Bedrooms 3
Number of bathrooms
Bathrooms 2
Number of living spaces
Living spaces 1
Number of toilets
Toilets 2
Carport or Garage Size
Carport or Garage Size 2
Floor size:
224m²

Show Home Permanently Closed

Features
  • Walk in linen cupboard
  • Study nook
  • Generous master bedroom
  • Window seat
  • Extra storage in garage

Designed for those who value life’s little luxuries, the Hobson features a master bedroom which is accompanied by a fabulous ensuite and a large walk-in robe complete with make-up nook. The charming window seat is the icing on the cake – the perfect spot to sit back and watch the world go by.

Call 0800 VERSATILE for more information.

Other show homes you may be interested in

Pukekohe – Custom Design 215m²

Number of bedrooms
4
Number of bathrooms
2
Number of Living Spaces
2
Carport or Garage Size
2

From the meticulously tiled acrylic shower to the charming brickwork, every detail is thoughtfully designed for the utmost comfort.

More

West Coast – Mclaren 188m²

Number of bedrooms
4
Number of bathrooms
2
Number of Living Spaces
2
Carport or Garage Size
1

This show home is now closed.

More