Dunedin — Blake

Blake
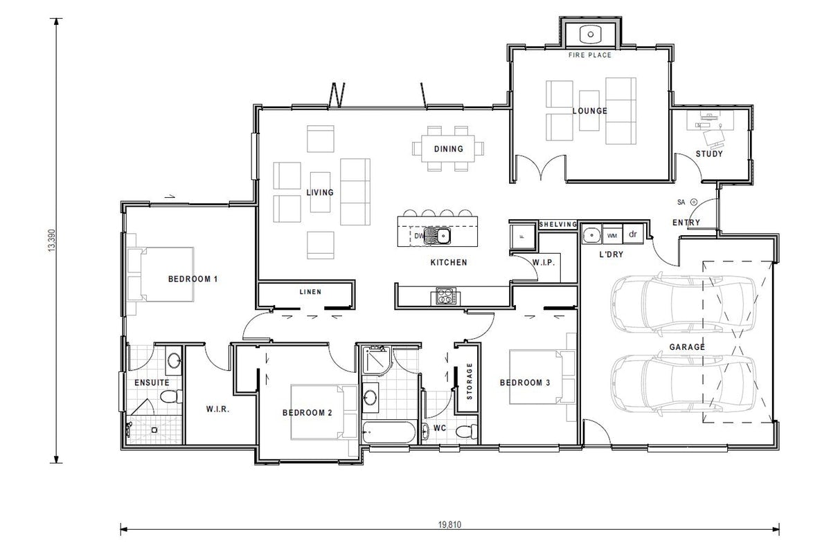
Number of bedrooms
Bedrooms 3
Number of bathrooms
Bathrooms 2
Number of offices
Offices 1
Number of living spaces
Living spaces 2
Number of toilets
Toilets 2
Carport or Garage Size
Carport or Garage Size 2
Floor size:
202m²

Show Home Permanently Closed

Features

An elegant, executive home offering plenty of space, and plenty of versatility! Three bedrooms are complemented by a separate office, conveniently located by the front door to enhance work-from-home opportunities. Bi-fold doors provide seamless indoor/outdoor flow from the main living area and ensure alfresco dining will be a regular event in summer, while the cosy lounge – complete with fireplace – is the perfect place to curl up in front of a movie during the winter months.

 

Other show homes you may be interested in

Dunedin – Modified Weka 110m²

Number of bedrooms
3
Number of bathrooms
2
Number of Living Spaces
1

This show home is now closed.

More

Dunedin – Hobson 224m²

Number of bedrooms
3
Number of bathrooms
2
Number of Living Spaces
1
Carport or Garage Size
2

This show home is now closed.

More