Rotorua — 33a Taharangi Street

33a Taharangi Street
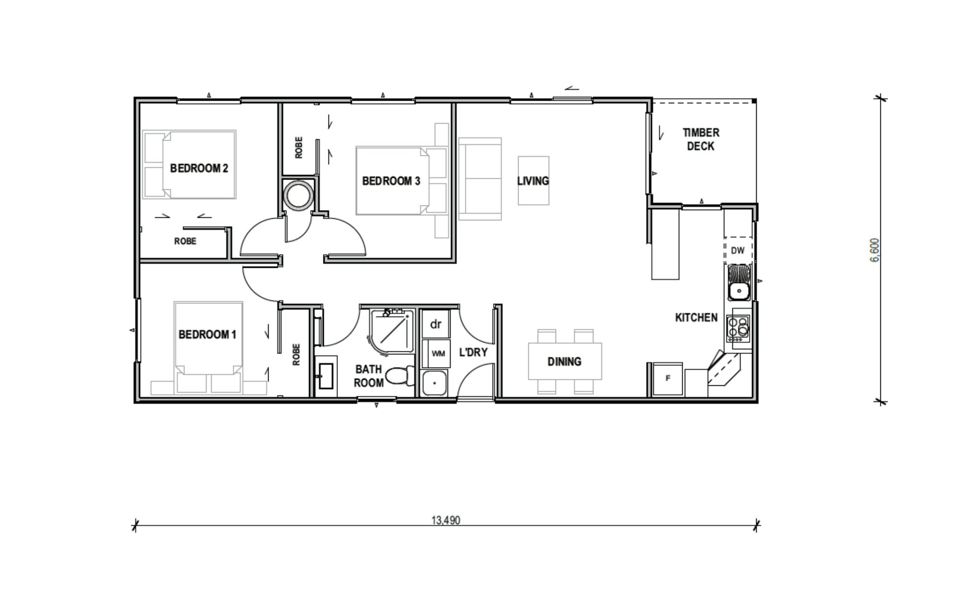
Number of bedrooms
Bedrooms 3
Number of bathrooms
Bathrooms 1
Number of living spaces
Living spaces 1
Number of toilets
Toilets 1
Floor size:
84m²
33a Taharangi Street, Rotorua

Open hours

Viewing by appointment
Call David Wyatt - on 027 578 8819
Get directions
Features

This contemporary three-bedroom home offers generous open-plan living, a full-sized kitchen, and a well-appointed bathroom — all cleverly designed within an 84m² footprint. Delivering comfort, quality, and exceptional value, it’s the perfect choice for first-time buyers or downsizers looking for a modern, low-maintenance lifestyle. Experience the comfort and style of a Versatile home today.

Other show homes you may be interested in

Wellington – Modified Tay 276m²

Number of bedrooms
4
Number of bathrooms
3
Number of Living Spaces
3
Carport or Garage Size
2

There’s a nod to retro architecture in the design of the Tay, a resplendently modern two-level home defined by clever flow and sleek minimalist styling. A downstairs master suite and a large flexi-space upstairs ensure the home can evolve as the needs of you and your family do likewise, while excellent indoor/outdoor flow promotes a strong connection to your surroundings.

More

New Plymouth – Queen 94m²

Number of bedrooms
2
Number of bathrooms
1
Number of Living Spaces
1
Carport or Garage Size
1

Show Home Permanently Closed

More