Palmerston North — Modified Smith

Modified Smith
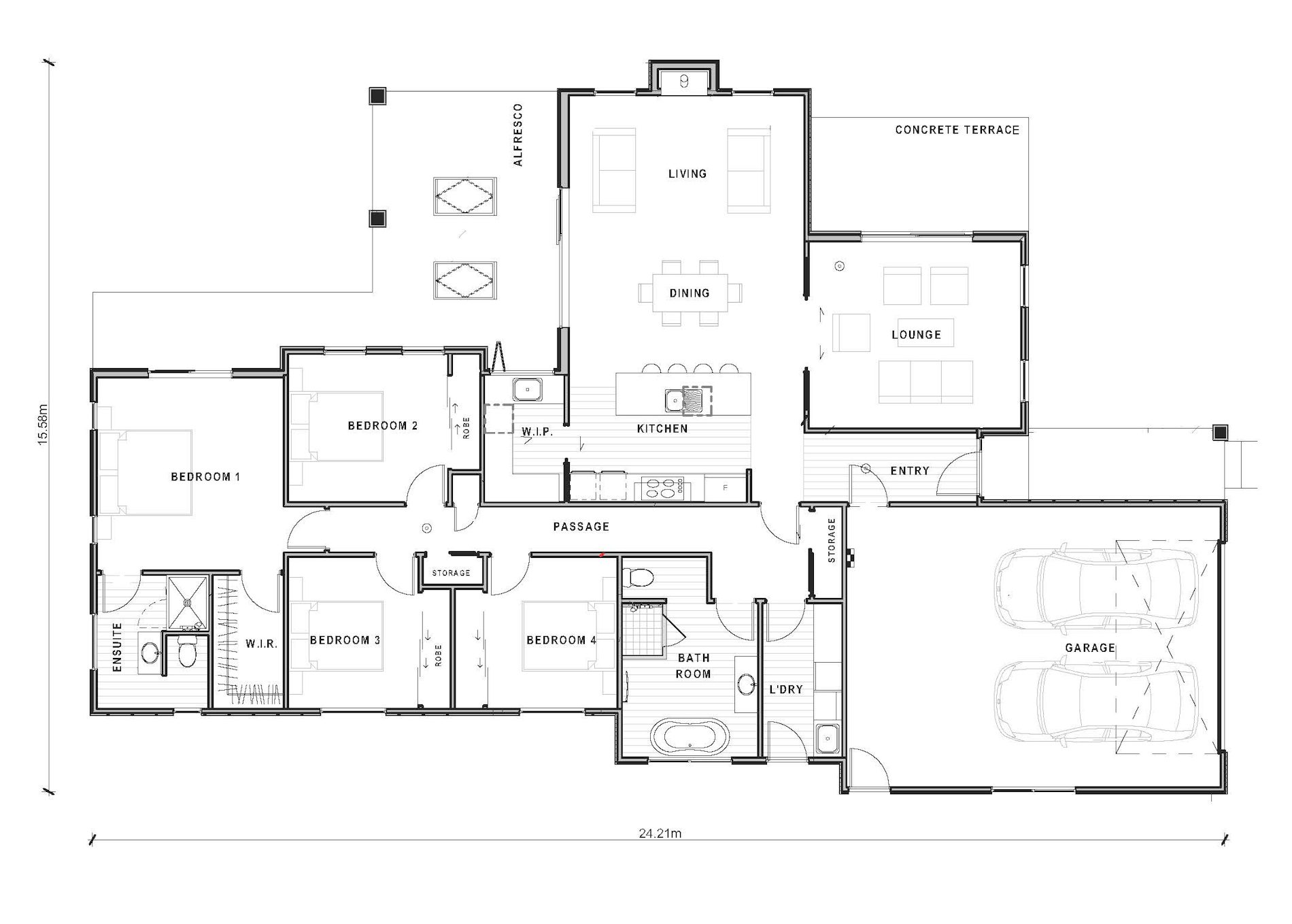
Number of bedrooms
Bedrooms 4
Number of bathrooms
Bathrooms 2
Number of living spaces
Living spaces 2
Number of toilets
Toilets 2
Carport or Garage Size
Carport or Garage Size 2
Floor size:
231m²

Show Home Permanently Closed

Features

A true family-sized home with large wardrobes and loads of storage. The large open-plan living area offers plenty of scope for any occasion or circumstance, while the separate media room means there’s always somewhere to escape to watch your favourite show.

 Features include:

  • Large decked area for alfresco dining
  • Study nook
  • Oversized garage with laundry area

This new show home is a modified version of our Smith plan - view details here.

Virtual Tour

Use your mouse to explore this Versatile show home

View more show homes

Cromwell – Kenepuru 269m²

Number of bedrooms
4
Number of bathrooms
2
Number of Living Spaces
2
Number of offices
1
Carport or Garage Size
2

This show home is now closed.

More

Cambridge – Konini 70m²

Number of bedrooms
2
Number of bathrooms
1
Number of Living Spaces
1

Crisp, clean lines define the design of this modern home, which boasts two bedrooms, a highly-functional kitchen and plenty of storage. Large stacker-slider doors offer an easy connection to the world outside.

More