Advantage 80

Advantage 80
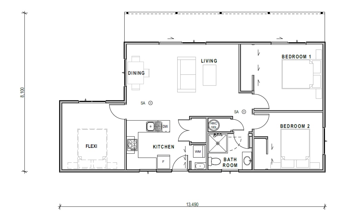
Number of bedrooms
Bedrooms 3
Number of bathrooms
Bathrooms 1
Number of living spaces
Living spaces 1
Number of toilets
Toilets 1
Floor size:
80m²

A home for the family or couple seeking extra space, this home can flex just for you. Offering three bedrooms, open plan living and a separate bathroom, this home provides exceptional value and opportunity for first home buyers, rental accommodation or as a holiday home.

Build price

Features
  • Three bedrooms
  • Excellent value and efficient use of space

Other plans you may be interested in

Advantage 75 Advantage Range 75m²

Number of bedrooms
1
Number of bathrooms
1
Number of Living Spaces
1
Carport or Garage Size
1

Meet Advantage 75: modern, mono-pitch design for extended family or investors, featuring an extra-long garage.

View Priced Plan

Build From $239,990*

Advantage 90 Advantage Range 90m²

Number of bedrooms
2
Number of bathrooms
1
Number of Living Spaces
1
Carport or Garage Size
1

Unlock potential with Advantage 90 – ideal for first homes, forever homes, or investors. Two spacious bedrooms, a large kitchen, and a generous garage in a sleek design.

View Priced Plan

Build From $282,490*