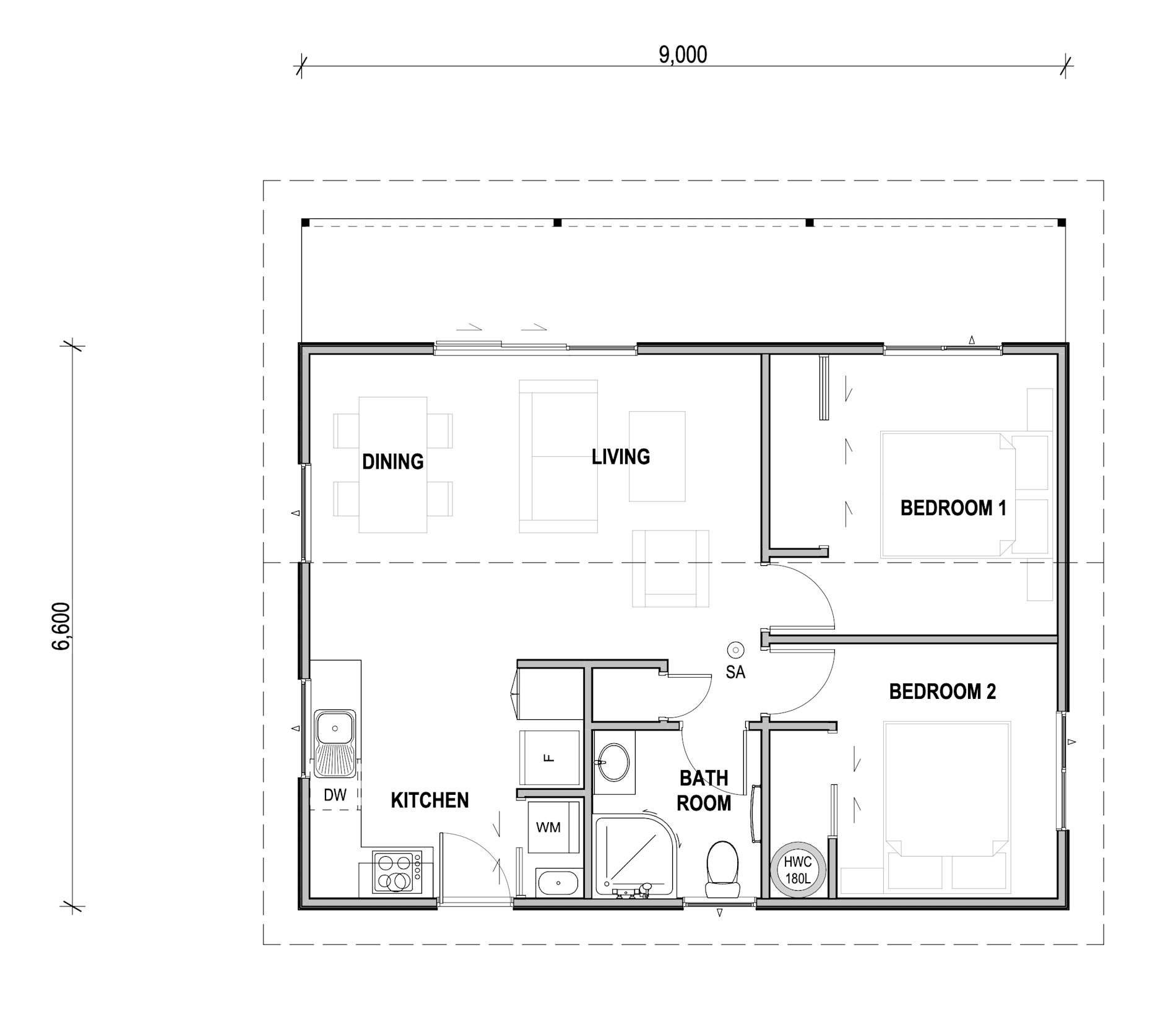
Advantage 60

Advantage 60
Number of bedrooms
Bedrooms 2
Number of bathrooms
Bathrooms 1
Number of living spaces
Living spaces 1
Number of toilets
Toilets 1
Floor size:
60m²

The quintessential cottage, this home includes a gorgeous veranda for relaxing on in the summer.  Inside you’ll find a comfortable, modern home that’s low maintenance and easy to heat in the winter. Great for smaller sites as a secondary dwelling or rural accommodation.

Build price

Features
  • Classic cottage style
  • Two bedrooms
  • Covered veranda with fantastic indoor-outdoor flow

Other plans you may be interested in

Advantage 75 Advantage Range 75m²

Number of bedrooms
1
Number of bathrooms
1
Number of Living Spaces
1
Carport or Garage Size
1

Meet Advantage 75: modern, mono-pitch design for extended family or investors, featuring an extra-long garage.

View Priced Plan

Build From $239,990*

Advantage 90 Advantage Range 90m²

Number of bedrooms
2
Number of bathrooms
1
Number of Living Spaces
1
Carport or Garage Size
1

Unlock potential with Advantage 90 – ideal for first homes, forever homes, or investors. Two spacious bedrooms, a large kitchen, and a generous garage in a sleek design.

View Priced Plan

Build From $282,490*