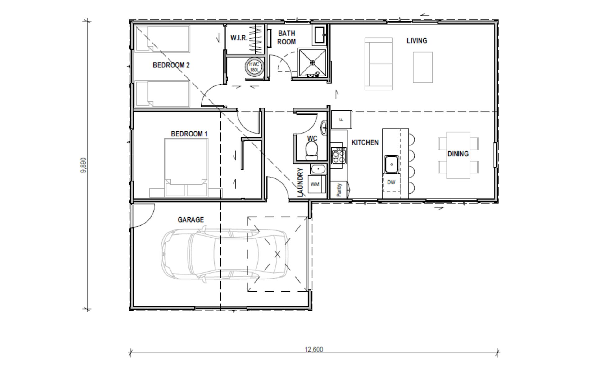
Advantage 100

Advantage 100
Number of bedrooms
Bedrooms 2
Number of bathrooms
Bathrooms 1
Number of living spaces
Living spaces 1
Number of toilets
Toilets 1
Carport or Garage Size
Carport or Garage Size 1
Floor size:
100m²

Embark on your homeownership journey with our enticing Advantage 100. The contemporary exterior houses two generously sized bedrooms, while a spacious open plan living area forms the heart of this cleverly designed home. A single garage adds practicality, and the compact footprint offers flexibility for subdividing or smaller sections.  

Build price

Features
  • Two generous bedrooms
  • Separate WC and laundry
  • Contemporary exterior

Other plans you may be interested in

Advantage 75 Advantage Range 75m²

Number of bedrooms
1
Number of bathrooms
1
Number of Living Spaces
1
Carport or Garage Size
1

Meet Advantage 75: modern, mono-pitch design for extended family or investors, featuring an extra-long garage.

View Priced Plan

Build From $239,990*

Advantage 50 Advantage Range 50m²

Number of bedrooms
1
Number of bathrooms
1
Number of Living Spaces
1
Number of offices
1

This contemporary 50m2 small home makes a bold statement.

View Priced Plan

Build From $204,990*