Advantage 72

Advantage 72
Number of bedrooms
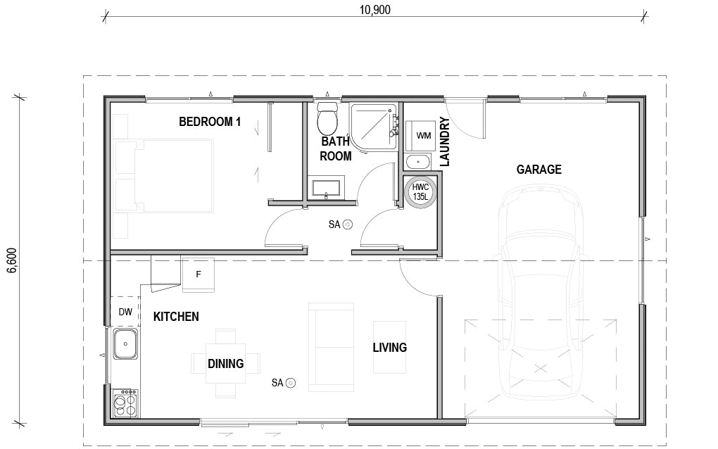
Bedrooms 1
Number of bathrooms
Bathrooms 1
Number of living spaces
Living spaces 1
Number of toilets
Toilets 1
Carport or Garage Size
Carport or Garage Size 1
Floor size:
72m²

Discover the hidden gem in your own backyard – the sleek and compact Advantage 72 home with single garage will transform the way you live and connect with loved ones.

With a spacious sun-soaked living area and generous kitchen space, this home is designed for harmonious living for aging family members or older teens seeking independence.

Build price

Features
  • One bedroom
  • Single garage
  • Light & bright living area

Other plans you may be interested in

Advantage 30 Advantage Range 30m²

Number of bedrooms
1
Number of bathrooms
1
Number of Living Spaces
1

Smart and functional this cute self-contained unit is just perfect when site space is at a premium.

View Priced Plan

Build From $148,490*

Advantage 90 Advantage Range 90m²

Number of bedrooms
2
Number of bathrooms
1
Number of Living Spaces
1
Carport or Garage Size
1

Unlock potential with Advantage 90 – ideal for first homes, forever homes, or investors. Two spacious bedrooms, a large kitchen, and a generous garage in a sleek design.

View Priced Plan

Build From $282,490*