Explorer

Explorer
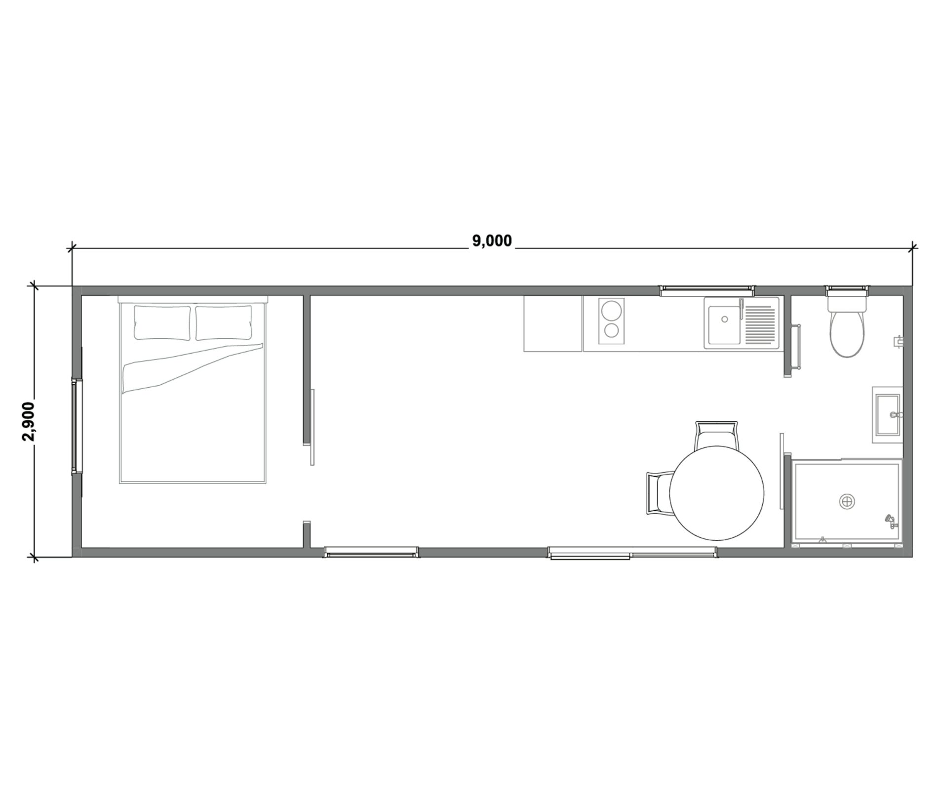
Number of bedrooms
Bedrooms 1
Number of bathrooms
Bathrooms 1
Number of living spaces
Living spaces 1
Number of toilets
Toilets 1
Floor size:
26m²

The Explorer makes the most of its compact footprint, offering a private bedroom with space for a queen bed, a kitchen with room for a washing machine, and a separate bathroom and toilet. It’s a smart solution for elderly parents, teenagers, or anyone needing independent living on your property.

Price from $119,990*

*Site works, connections to services and freight excluded in the base price. Decking, furniture and soft furnishings also excluded. Terms, conditions and exclusions apply - contact your local team or visit terms, conditions and exclusions for details. Images are illustrative only. All plans are subject to copyright and no part may be reproduced or copied without prior written consent from Versatile.

Features
  • Compliant with Healthy Homes Standards
  • Heat pump/air conditioning
  • Double glazed joinery
  • Trickle air vents to reduce condensation and increase airflow
  • Bathroom with shower, toilet, vanity and basin
  • Kitchen with cooktop, rangehood, dishwasher, sink, oven and cupboard space
  • Continuous hot water via gas califont

Other plans you may be interested in

Aspirer VERSAPOD™ 21m²

Number of bedrooms
1
Number of bathrooms
1
Number of Living Spaces
1

The Aspirer is a flexible solution for holidays, rentals, or downsizing.

View Plan

Price from $109,990*

Creator VERSAPOD™ 9m²

Number of offices
1

Creator is the perfect multi-purpose or home office space.

View Plan

Price from $39,999*