Lifestyler

Lifestyler
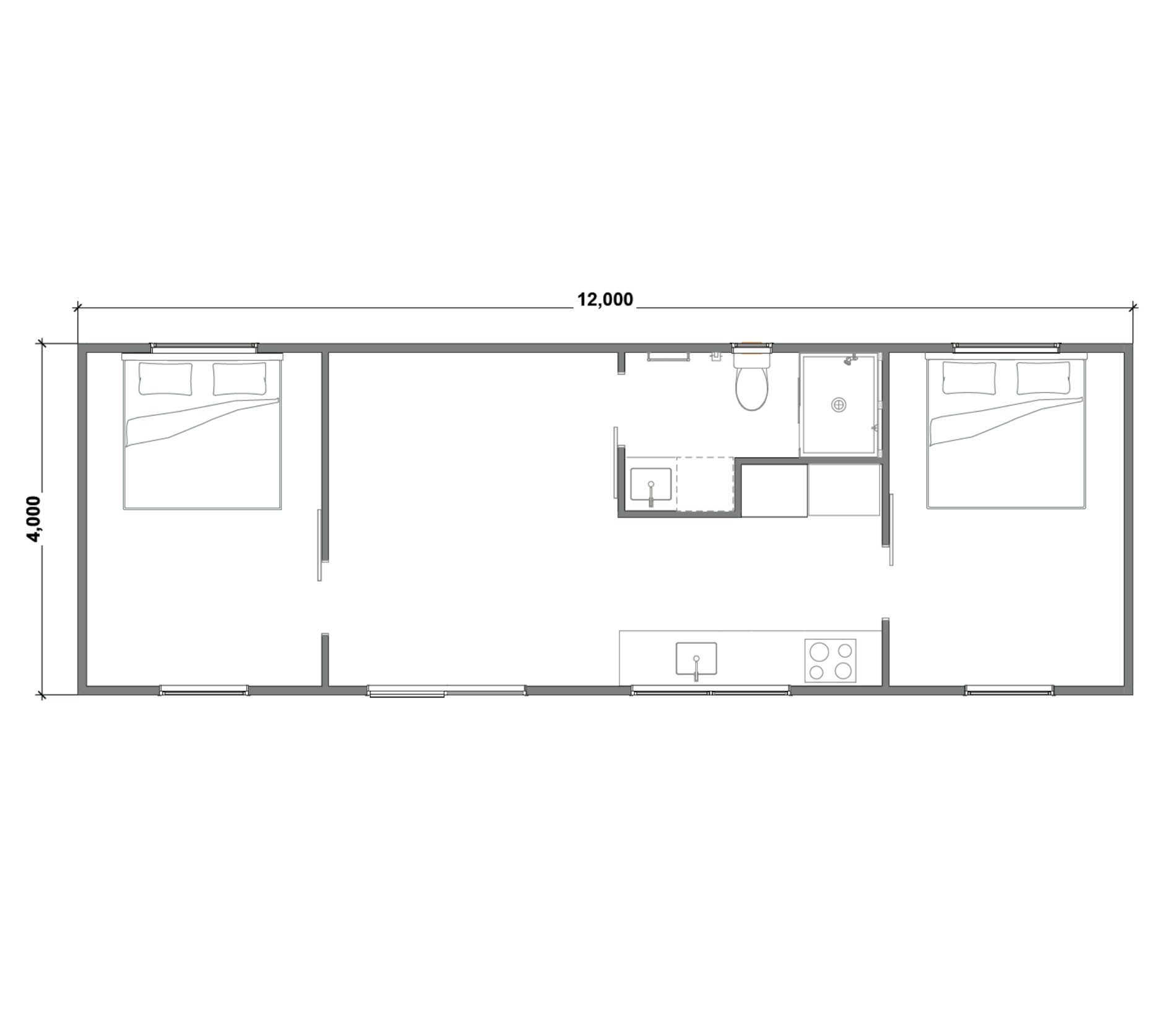
Number of bedrooms
Bedrooms 2
Number of bathrooms
Bathrooms 1
Number of living spaces
Living spaces 1
Number of toilets
Toilets 1
Floor size:
48m²

The Lifestyler features two bedrooms and is perfect for small families, first-home buyers, downsizers, or as a rental dwelling on your property.

Price from $159,990*

*Site works, connections to services and freight excluded in the base price. Decking, feature panelling, cedar details, furniture, soft furnishings and wardrobe unit also excluded. Terms, conditions and exclusions apply - contact your local team or visit terms, conditions and exclusions for details. Images are illustrative only. All plans are subject to copyright and no part may be reproduced or copied without prior written consent from Versatile.

Features
  • Compliant with Healthy Homes Standards
  • Heat pump/air conditioning
  • Double glazed joinery
  • Trickle air vents to reduce condensation and increase airflow
  • Bathroom with shower, toilet, vanity, basin and laundry
  • Kitchen with cooktop, oven, rangehood, dishwasher, sink and cupboard space
  • Two double bedrooms and separate living space
  • Continuous hot water via gas califont

Other plans you may be interested in

Expander VERSAPOD™ 14m²

Number of bedrooms
1
Number of bathrooms
1

The Expander is a flexible space for teens, working from home, or creative pursuits.

View Plan

Price from $69,990*

Relaxer VERSAPOD™ 34m²

Number of bedrooms
1
Number of bathrooms
1
Number of Living Spaces
1

The Relaxer offers spacious one-bedroom living for holidays, rentals, or extended family.

View Plan

Price from $139,990*