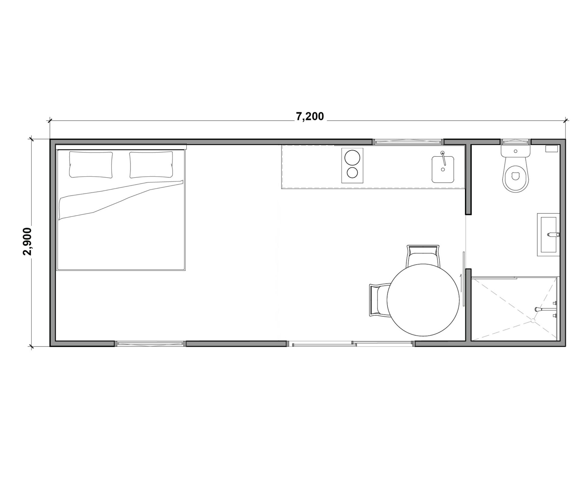
Aspirer
Number of bedrooms
Bedrooms 1
Number of bathrooms
Bathrooms 1
Number of living spaces
Living spaces 1
Number of toilets
Toilets 1
Floor size:
21m²

The Aspirer is a smart and flexible choice, excellent as a holiday home, short-term rental, worker accommodation, or for anyone looking to downsize without compromise.

Price from $109,990*

*Site works, connections to services and freight excluded in the base price. Decking, feature panelling, furniture and soft furnishings also excluded. Terms, conditions and exclusions apply - contact your local team or visit terms, conditions and exclusions for details. Images are illustrative only. All plans are subject to copyright and no part may be reproduced or copied without prior written consent from Versatile.

Features
  • Compliant with Healthy Homes Standards
  • Heat pump/air conditioning
  • Double glazed joinery
  • Trickle air vents to reduce condensation and increase airflow
  • Bathroom with a shower, toilet, vanity and basin
  • Kitchen with cooktop, oven, rangehood, dishwasher, sink and cupboard space
  • Continuous hot water via gas califont

Other plans you may be interested in

Lifestyler VERSAPOD™ 48m²

Number of bedrooms
2
Number of bathrooms
1
Number of Living Spaces
1

The Lifestyler is a versatile two-bedroom option for modern living.

View Plan

Price from $159,990*

Explorer VERSAPOD™ 26m²

Number of bedrooms
1
Number of bathrooms
1
Number of Living Spaces
1

The Explorer delivers smart, self-contained living in a compact design.

View Plan

Price from $119,990*