Evolver
Number of bedrooms
Bedrooms 1
Number of bathrooms
Bathrooms 1
Number of offices
Offices 1
Number of toilets
Toilets 1
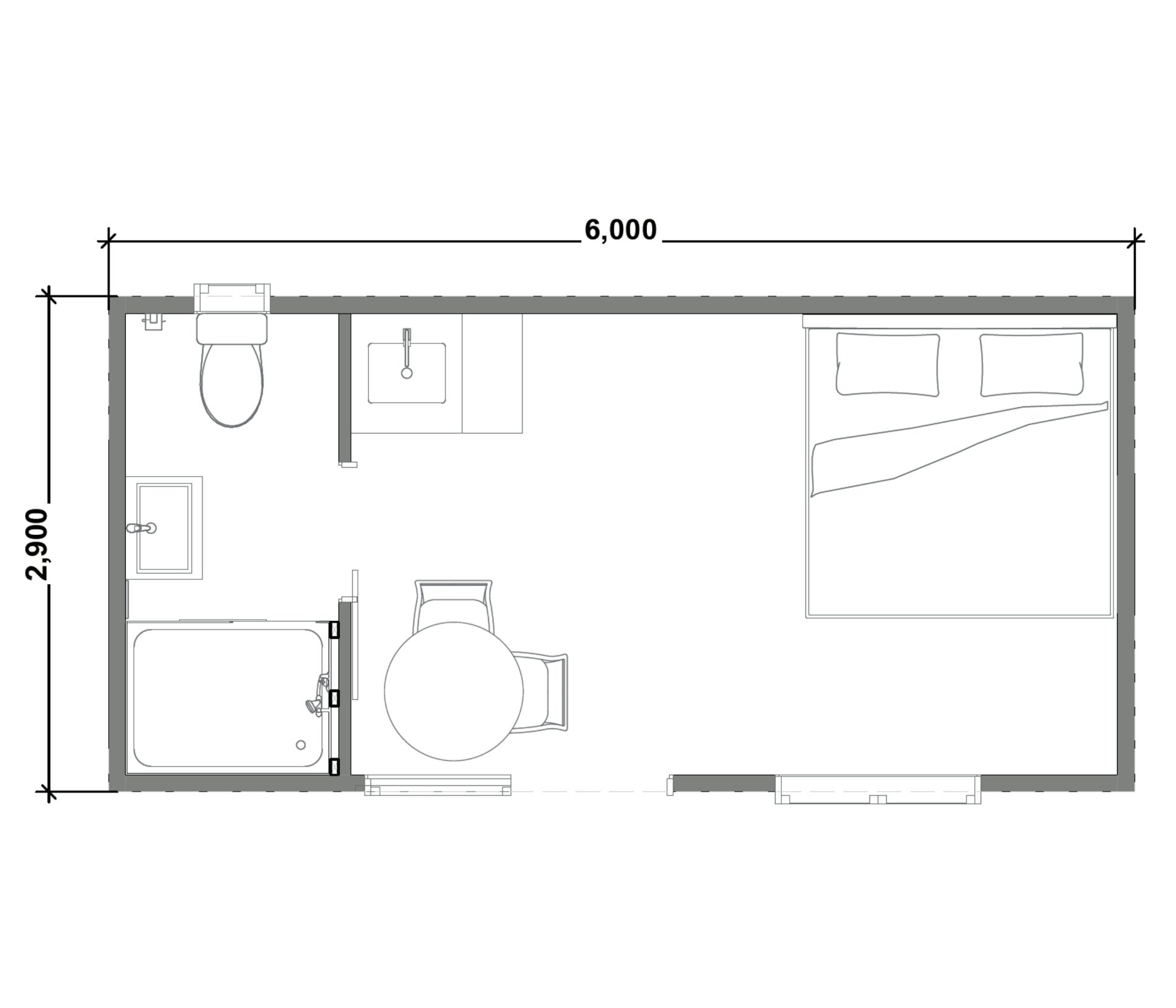
Floor size:
17m²

The Evolver is perfect as a guest house or a private retreat for independent teenagers. With enough space for a double or queen bed, it offers comfort and flexibility in a compact footprint.

Price from $89,990*

*Site works, connections to services and freight excluded in the base price. Concrete patio, furniture and soft furnishings also excluded. Terms, conditions and exclusions apply - contact your local team or visit  terms, conditions and exclusions for details. Images are illustrative only. All plans are subject to copyright and no part may be reproduced or copied without prior written consent from Versatile.

Features
  • Compliant with Healthy Homes Standards
  • Bathroom with shower, toilet, vanity and basin
  • Sink and storage space
  • Heat pump / air conditioning
  • Trickle air vents to reduce condensation and increase airflow

Other plans you may be interested in

Relaxer VERSAPOD™ 34m²

Number of bedrooms
1
Number of bathrooms
1
Number of Living Spaces
1

The Relaxer offers spacious one-bedroom living for holidays, rentals, or extended family.

View Plan

Price from $139,990*

Expander VERSAPOD™ 14m²

Number of bedrooms
1
Number of bathrooms
1

The Expander is a flexible space for teens, working from home, or creative pursuits.

View Plan

Price from $69,990*