West Coast — Mclaren

Number of bedrooms
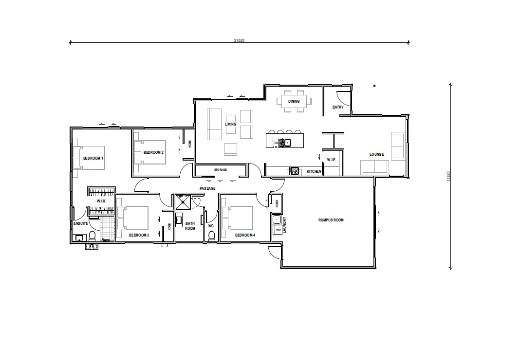
Bedrooms 4
Number of bathrooms
Bathrooms 2
Number of living spaces
Living spaces 2
Number of toilets
Toilets 2
Carport or Garage Size
Carport or Garage Size 1
Floor size:
188m²

Show Home Permanently Closed

Features

There’s a lot of home on offer in this lovely, cost-effective design, with four double bedrooms catering to families of all shapes and sizes. The unique layout of the McLaren makes it ideal for narrow sites, and perfect for purchasers looking to maximise the strength of their investment.

Other show homes you may be interested in

West Coast – Munro 220m²

Number of bedrooms
3
Number of bathrooms
2
Number of Living Spaces
2
Carport or Garage Size
2

This show home is now closed

More

Wellington – Modified Tay 276m²

Number of bedrooms
4
Number of bathrooms
3
Number of Living Spaces
3
Carport or Garage Size
2

There’s a nod to retro architecture in the design of the Tay, a resplendently modern two-level home defined by clever flow and sleek minimalist styling. A downstairs master suite and a large flexi-space upstairs ensure the home can evolve as the needs of you and your family do likewise, while excellent indoor/outdoor flow promotes a strong connection to your surroundings.

More