Hawkes Bay — Te Anau

Te Anau
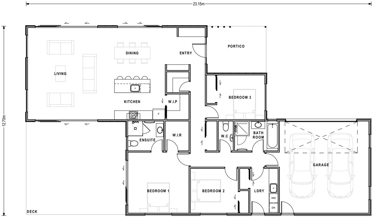
Number of bedrooms
Bedrooms 3
Number of bathrooms
Bathrooms 2
Number of living spaces
Living spaces 1
Number of toilets
Toilets 2
Carport or Garage Size
Carport or Garage Size 2
Floor size:
206m²

Show Home Permanently Closed

Features

This show home is now closed.

View more show homes

Palmerston North – Tui 78m²

Number of bedrooms
3
Number of bathrooms
2
Number of Living Spaces
1

This popular three-bedroom design ticks all the boxes when it comes to both functionality and value for money.

More

Wellington – Modified Tay 276m²

Number of bedrooms
4
Number of bathrooms
3
Number of Living Spaces
3
Carport or Garage Size
2

There’s a nod to retro architecture in the design of the Tay, a resplendently modern two-level home defined by clever flow and sleek minimalist styling. A downstairs master suite and a large flexi-space upstairs ensure the home can evolve as the needs of you and your family do likewise, while excellent indoor/outdoor flow promotes a strong connection to your surroundings.

More