Number of bedrooms
Bedrooms 4
Number of bathrooms
Bathrooms 2
Number of living spaces
Living spaces 1
Number of toilets
Toilets 3
Floor size:
154m²

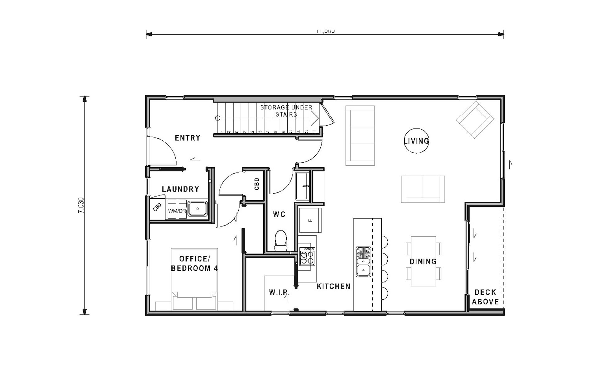
Smart design and contemporary finishes combine in this spacious family home. Four bedrooms (three up, one down) are complemented by generous open-plan living areas and a chef’s kitchen (with walk-in pantry). There’s also ample storage, a separate laundry and a balcony off the master.

Features
  • Contemporary pavilion style
  • Walk-in pantry
  • Balcony
  • Potential to duplex

Other plans you may be interested in

Eden Metro Range 154m²

Number of bedrooms
4
Number of bathrooms
2
Number of Living Spaces
1
Carport or Garage Size
1

Welcome to the Eden, where modern and stylish family living thrives even in compact spaces. This home strikes the perfect balance between generous living areas and four bedrooms, harmonising seamlessly with practicality. With a versatile layout and ample storage, it's ideal for families and those who love to host, offering a delightful blend of functionality and contemporary design.

View Plan

Cambridge Metro Range 143m²

Number of bedrooms
3
Number of bathrooms
2
Number of Living Spaces
1
Carport or Garage Size
1

Experience smart design and modern aesthetics in this 3-bedroom home with mono-pitch roof. The generous open-plan living area sets the stage for seamless gatherings, while the private master suite offers relaxation with its ensuite, walk-in wardrobe, and even a convenient office nook. Discover the perfect balance of style and functionality, where every detail is crafted to elevate your living experience.

View Plan