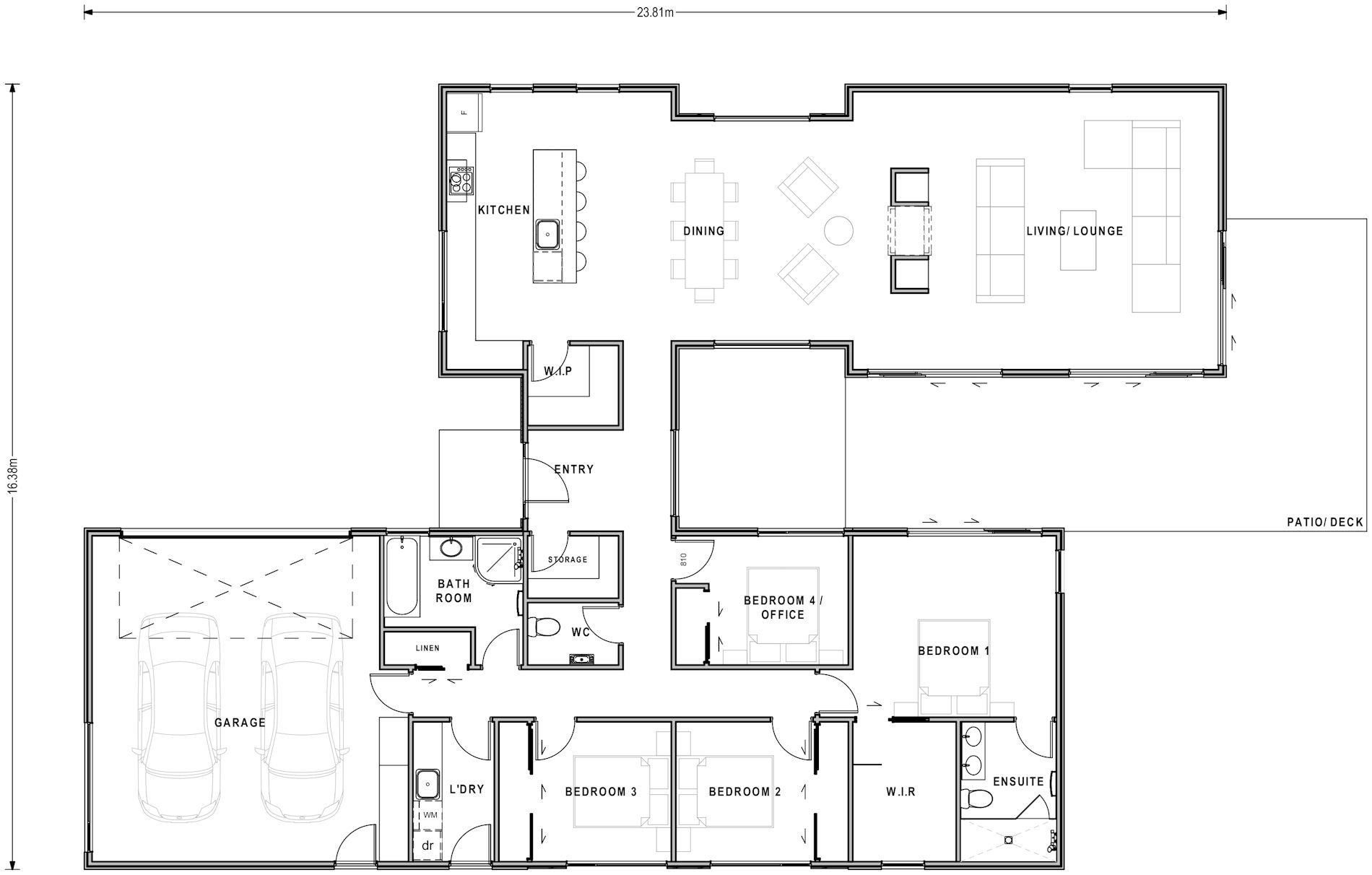
Number of bedrooms
Bedrooms 4
Number of bathrooms
Bathrooms 2
Number of living spaces
Living spaces 2
Number of toilets
Toilets 2
Carport or Garage Size
Carport or Garage Size 2
Floor size:
251m²

This executive family home boasts plenty of architectural style, including the stunning entrance way which greets visitors. Inside, four bedrooms (or three and an office/flexi space) offer ample accommodation, while a separate wing dedicated to the living areas means you can entertain all night without disturbing those who are sleeping.

Features
  • Architectural influence
  • Feature two-sided fireplace and storage
  • Courtyard views from entrance

Related Plans

Tasman Lifestyle Range 269m²

House - Lifestyle Range Tasman
Number of bedrooms
3
Number of bathrooms
2
Number of Living Spaces
2
Carport or Garage Size
2

The unique design of the Tasman leaves no room untouched by the sun and creates a sheltered outdoor area which can be enjoyed all year round. a generously-proportioned lounge means there’s always somewhere to retreat to watch your favorite movie.

View Plan