King
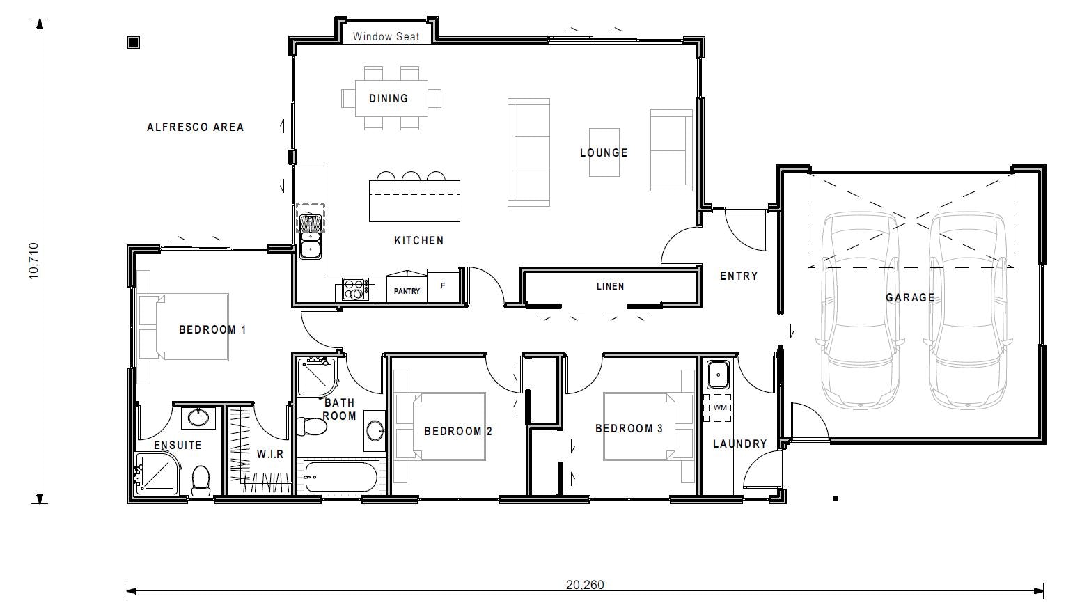
Number of bedrooms
Bedrooms 3
Number of bathrooms
Bathrooms 2
Number of living spaces
Living spaces 1
Number of toilets
Toilets 2
Carport or Garage Size
Carport or Garage Size 2
Floor size:
163m²

With its contemporary exterior and its timeless design, the King really does offer the best of both worlds. The intelligent layout includes a sun-soaked kitchen/dining space which opens on to a fabulous outdoor entertaining area, with the cosy window seat just one of many lovely little touches. Of course, there’s also ample storage, a separate laundry, and a double garage!

Features
  • Outdoor entertaining area
  • Bay window seat
  • Separate laundry
  • Stylish exterior

Related plans

Lambton Metro Range 190m²

Number of bedrooms
3
Number of bathrooms
2
Number of Living Spaces
2
Carport or Garage Size
2

This modern family home is generously-proportioned despite being designed for smaller sites. The second living area would make a great media room, while the location of the master bedroom (away from the other bedrooms) offers plenty of privacy.

View Plan

Eden Metro Range 154m²

Number of bedrooms
4
Number of bathrooms
2
Number of Living Spaces
1
Carport or Garage Size
1

Welcome to the Eden, where modern and stylish family living thrives even in compact spaces. This home strikes the perfect balance between generous living areas and four bedrooms, harmonising seamlessly with practicality. With a versatile layout and ample storage, it's ideal for families and those who love to host, offering a delightful blend of functionality and contemporary design.

View Plan