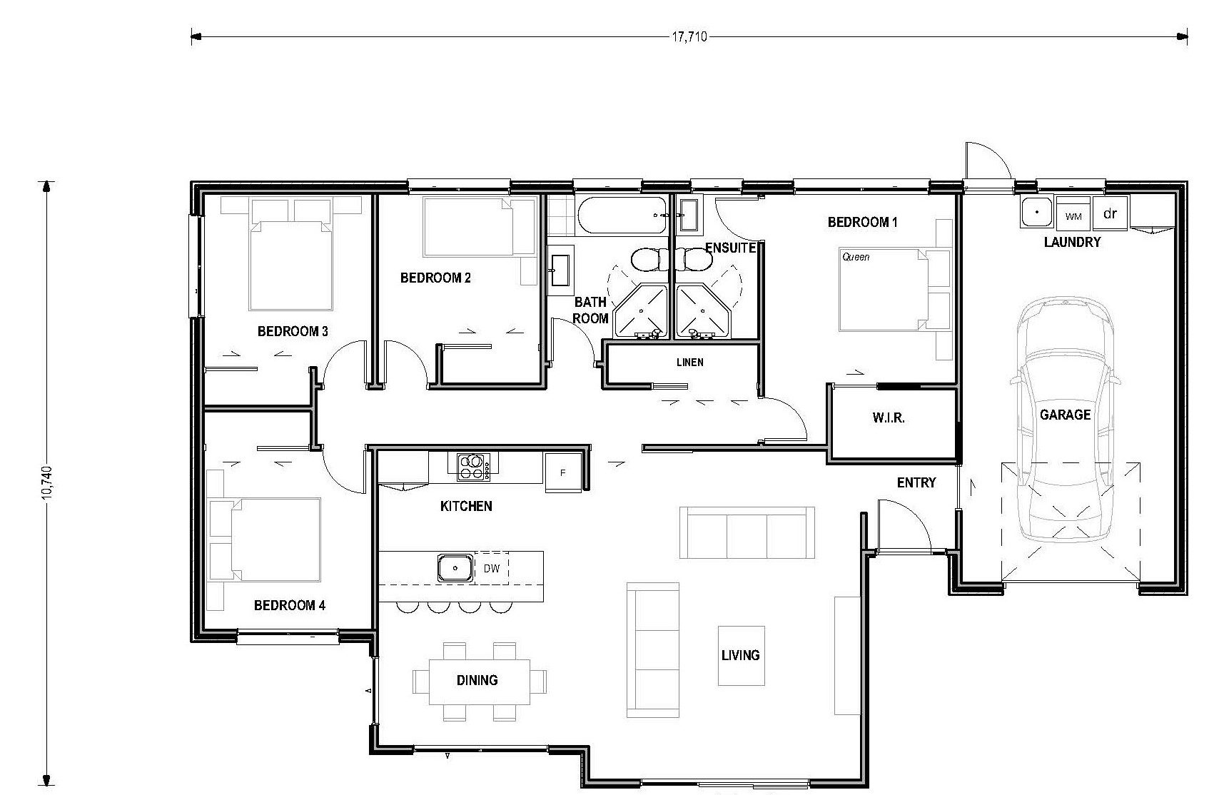
Number of bedrooms
Bedrooms 4
Number of bathrooms
Bathrooms 2
Number of living spaces
Living spaces 1
Number of toilets
Toilets 2
Carport or Garage Size
Carport or Garage Size 1
Floor size:
154m²

Welcome to the Eden, where modern and stylish family living thrives even in compact spaces. This home strikes the perfect balance between generous living areas and four bedrooms, harmonising seamlessly with practicality. With a versatile layout and ample storage, it's ideal for families and those who love to host, offering a delightful blend of functionality and contemporary design.

Features
  • 4 bedrooms
  • Spacious open plan living
  • Set for the sun

Related Plans

Albert Metro Range 120m²

Number of bedrooms
2
Number of bathrooms
1
Number of Living Spaces
1
Carport or Garage Size
2

Add value to your existing property with the Albert!  Based around a compact, 9x6.6m footprint, the Albert features a garage on the ground floor and a two-bedroom, self-contained unit on top, making it perfect for extended family or as an additional income stream.

View Plan

Remuera Metro Range 161m²

Number of bedrooms
3
Number of bathrooms
2
Number of Living Spaces
1
Carport or Garage Size
2

Introducing the Remuera, where indoor/outdoor living takes centre stage. This stunning home effortlessly connects to the backyard from all family spaces, even boasting a bifold window in the dining room for alfresco dining or a makeshift bar-leaner! Enjoy privacy with the main bedroom separate from the others, while the generous garage space ensures ample storage for all your needs. Get ready to embrace a delightful blend of comfort and convenience.

View Plan