Cuba
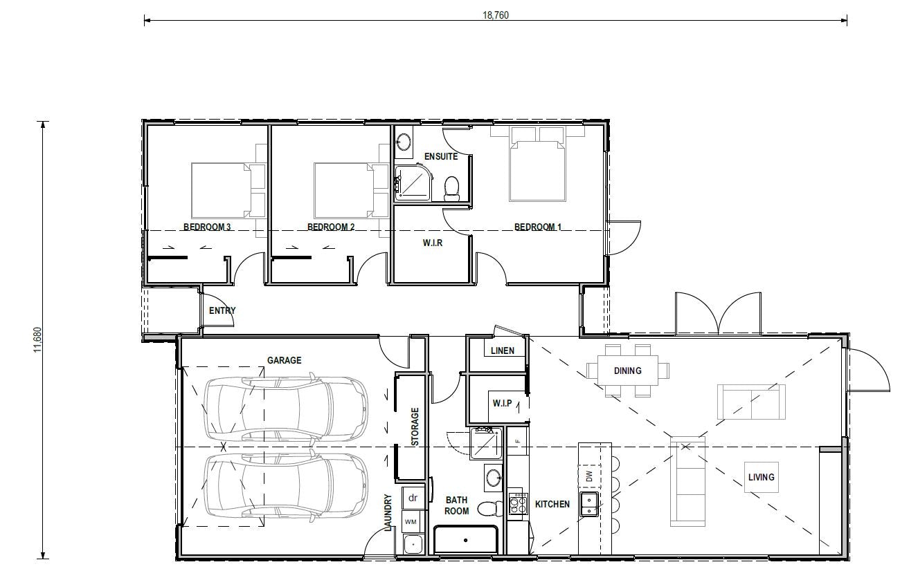
Number of bedrooms
Bedrooms 3
Number of bathrooms
Bathrooms 2
Number of living spaces
Living spaces 1
Number of toilets
Toilets 2
Carport or Garage Size
Carport or Garage Size 2
Floor size:
175m²

From the minimalist interior to the raking ceiling in the spacious living area, the architectural influence is strong in this contemporary, pavilion-style home. Three equal-size bedrooms and a large family bathroom add further appeal.

Features
  • Minimalist interior
  • Pavilion metal clad exterior raking ceiling
  • Optional pergola

Virtual Tour

Related Plans

Baldwin Metro Range 140m²

Number of bedrooms
2
Number of bathrooms
1
Number of Living Spaces
1
Carport or Garage Size
1

Functional, contemporary and unique, the Baldwin is a nod to the modern barn; a compact design with plenty of personality. This two-bedroom home is the perfect place to start your journey up the property ladder, with high ceilings in the living area and distinctive architectural elements lending the property a surprising sense of space.

View Plan