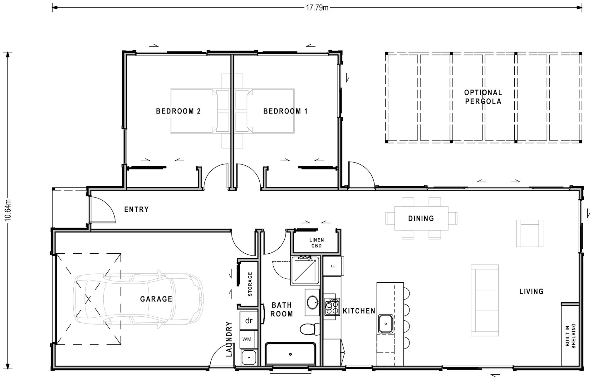
Baldwin
Number of bedrooms
Bedrooms 2
Number of bathrooms
Bathrooms 1
Number of living spaces
Living spaces 1
Number of toilets
Toilets 1
Carport or Garage Size
Carport or Garage Size 1
Floor size:
140m²

Functional, contemporary and unique, the Baldwin is a nod to the modern barn; a compact design with plenty of personality. This two-bedroom home is the perfect place to start your journey up the property ladder, with high ceilings in the living area and distinctive architectural elements lending the property a surprising sense of space.

Features
  • Contemporary exterior style
  • Oversize single garage with extra storage
  • Raking ceiling through living areas

Related Plans

Rutherford Metro Range 151m²

Number of bedrooms
3
Number of bathrooms
2
Number of Living Spaces
1
Number of offices
1
Carport or Garage Size
1

Modern and easy living converge in the Rutherford. Experience the perfect blend of style and functionality in this 3-bedroom beauty. Entertain effortlessly with the open-plan layout, boasting a modern kitchen with a walk-in pantry. The master suite offers an ensuite and walk-in wardrobe. A private office provides ample space for all your needs and work from home opportunities.

View Plan

Stafford Metro Range 154m²

Number of bedrooms
3
Number of bathrooms
2
Number of Living Spaces
1
Number of offices
1
Carport or Garage Size
1

Step into a sanctuary of modern living with the Stafford. This well designed 3-bedroom home invites effortless entertainment with its open-plan elegance. Indulge in the master suite's ensuite and walk-in wardrobe, while generous storage adds practicality, and a modern kitchen layout with a convenient walk-in pantry elevate convenience. Plus, a dedicated office space ensures productivity in this perfect haven for contemporary living.

View Plan