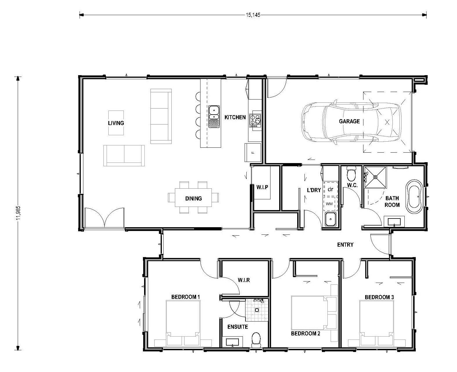
Colombo
Number of bedrooms
Bedrooms 3
Number of bathrooms
Bathrooms 2
Number of living spaces
Living spaces 1
Number of toilets
Toilets 2
Carport or Garage Size
Carport or Garage Size 1
Floor size:
160m²

Welcome to the Colombo, where modern living meets refined sophistication. Enjoy the clean lines of this home's design as you entertain in the spacious open plan dining and living area with a striking raked ceiling. Discover practicality in the thoughtfully designed laundry, while generous storage and a sleek modern kitchen with a convenient walk-in pantry elevate convenience. Experience contemporary living at its finest.

Features
  • Stylish, modern design
  • Spacious open plan living
  • Ample storage and practicality

Related Plans

Eden Metro Range 154m²

Number of bedrooms
4
Number of bathrooms
2
Number of Living Spaces
1
Carport or Garage Size
1

Welcome to the Eden, where modern and stylish family living thrives even in compact spaces. This home strikes the perfect balance between generous living areas and four bedrooms, harmonising seamlessly with practicality. With a versatile layout and ample storage, it's ideal for families and those who love to host, offering a delightful blend of functionality and contemporary design.

View Plan

Dominion Metro Range 177m²

Number of bedrooms
3
Number of bathrooms
2
Number of Living Spaces
1
Number of offices
1
Carport or Garage Size
1

Create your own funky industrial apartment with the Dominion! Behind the sleek, metal-clad exterior sits a light-filled stairwell, an expansive open-plan living area and three good-sized bedrooms. There’s also ample storage and a convenient office area/library nook.

View Plan