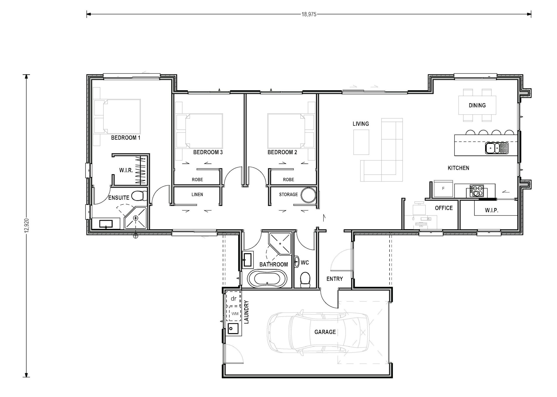
Stafford

Stafford
Number of bedrooms
Bedrooms 3
Number of bathrooms
Bathrooms 2
Number of offices
Offices 1
Number of living spaces
Living spaces 1
Number of toilets
Toilets 2
Carport or Garage Size
Carport or Garage Size 1
Floor size:
154m²

Step into a sanctuary of modern living with the Stafford. This well designed 3-bedroom home invites effortless entertainment with its open-plan elegance. Indulge in the master suite's ensuite and walk-in wardrobe, while generous storage adds practicality, and a modern kitchen layout with a convenient walk-in pantry elevate convenience. Plus, a dedicated office space ensures productivity in this perfect haven for contemporary living.

Features
  • Open plan elegance
  • Convenient and functional design
  • 3 bedrooms plus office space

Related Plans

Albert Metro Range 120m²

Number of bedrooms
2
Number of bathrooms
1
Number of Living Spaces
1
Carport or Garage Size
2

Add value to your existing property with the Albert!  Based around a compact, 9x6.6m footprint, the Albert features a garage on the ground floor and a two-bedroom, self-contained unit on top, making it perfect for extended family or as an additional income stream.

View Plan

Colombo Metro Range 160m²

Number of bedrooms
3
Number of bathrooms
2
Number of Living Spaces
1
Carport or Garage Size
1

Welcome to the Colombo, where modern living meets refined sophistication. Enjoy the clean lines of this home's design as you entertain in the spacious open plan dining and living area with a striking raked ceiling. Discover practicality in the thoughtfully designed laundry, while generous storage and a sleek modern kitchen with a convenient walk-in pantry elevate convenience. Experience contemporary living at its finest.

View Plan