Wairarapa — Advantage 65

Advantage 65
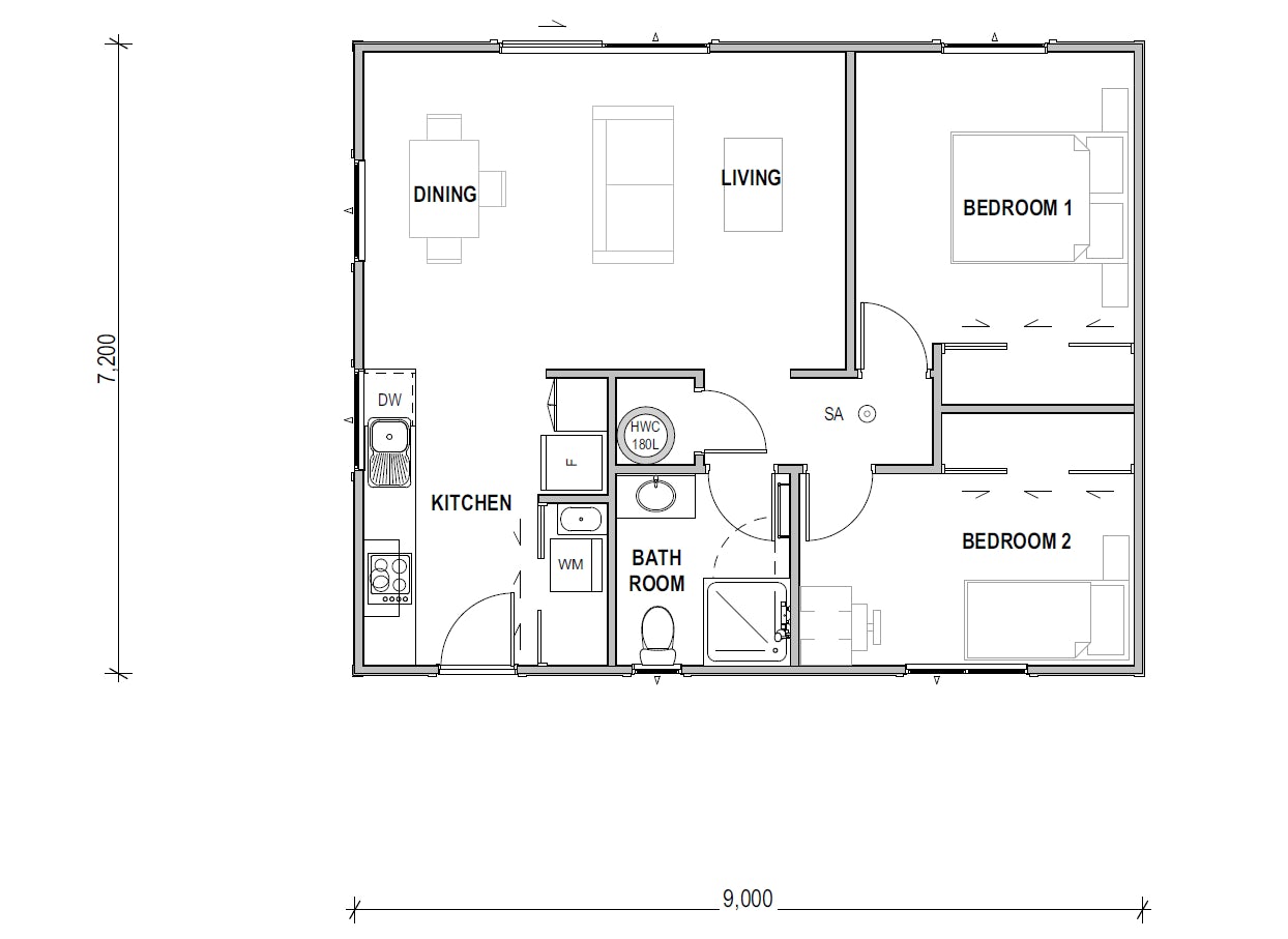
Number of bedrooms
Bedrooms 2
Number of bathrooms
Bathrooms 1
Number of living spaces
Living spaces 1
Number of toilets
Toilets 1
Floor size:
65m²
205 Ngaumutawa Road, Masterton

Open hours

Mon-Fri
8:30am - 5:00pm
Get directions
Features

This contemporary two-bedroom compact home from our Advantage range features generous open plan living, full-sized kitchen and bathroom, all within a 65m² footprint. Perfectly suited to build in the back of your land and add lasting value. Experience the comfort and style of a Versatile home today.

Other show homes you may be interested in

Whangarei – Tui 59m²

Number of bedrooms
2
Number of bathrooms
1
Number of Living Spaces
1

This popular design ticks all the boxes when it comes to both functionality and value for money. Every inch of space is put to good use in the Tui, making it ideal for extended family, student accommodation or a home away from home during the holidays.

More

Pokeno – Custom 249m²

Number of bedrooms
4
Number of bathrooms
2
Number of Living Spaces
2
Carport or Garage Size
2

This show home is now permanently closed.  Check out new show home in Hitchen Road!

More