Christchurch — Britten

Britten
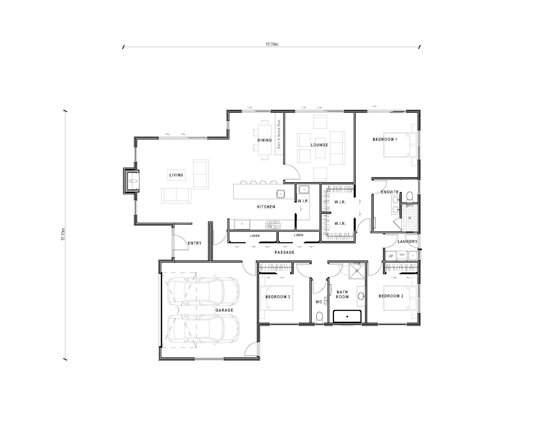
Number of bedrooms
Bedrooms 3
Number of bathrooms
Bathrooms 2
Number of living spaces
Living spaces 2
Number of toilets
Toilets 2
Carport or Garage Size
Carport or Garage Size 2
Floor size:
218m²

Show Home Permanently Closed

Features
  • Kitchen with feature storage
  • Expansive open-plan living
  • Separate laundry

This show home is now closed.

Those looking to downsize without downgrading will be drawn to the Britten, a luxury three-bedroom home featuring plenty of creature comforts. The large open-plan living area is complemented by a separate media lounge, while the chef’s kitchen (with walk-in pantry) offers everything the avid foodie looks for!

Virtual Tour

Other show homes you may be interested in

Cambridge – Konini 70m²

Number of bedrooms
2
Number of bathrooms
1
Number of Living Spaces
1

Crisp, clean lines define the design of this modern home, which boasts two bedrooms, a highly-functional kitchen and plenty of storage. Large stacker-slider doors offer an easy connection to the world outside.

More

Wanganui – Modified Tui 78m²

Number of bedrooms
3
Number of bathrooms
1
Number of Living Spaces
1

This popular three-bedroom design ticks all the boxes when it comes to both functionality and value for money. Every inch of space is put to good use in the Tui, making it ideal for extended family, student accommodation or a home away from home during the holidays.

More