Palmerston North — Tui

Tui
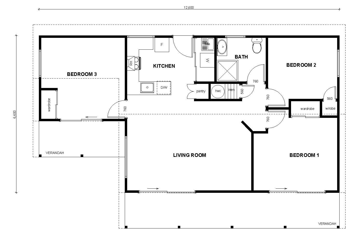
Number of bedrooms
Bedrooms 3
Number of bathrooms
Bathrooms 2
Number of living spaces
Living spaces 1
Number of toilets
Toilets 2
Floor size:
78m²
948 Tremaine Avenue, Palmerston North

Open hours

Mon-Fri
8:00am - 4:30pm
Other times by appointment
Get directions
Features

This popular three-bedroom design ticks all the boxes when it comes to both functionality and value for money. Every inch of space is put to good use in the Tui, making it ideal for extended family, student accommodation or a home away from home during the holidays.

View more show homes

West Coast – Lambton 199m²

Number of bedrooms
3
Number of bathrooms
2
Number of Living Spaces
2
Carport or Garage Size
2

This show home is now closed. You can still visit see us at 26 Weld Street, Hokitika.

More

Wellington – Modified Tay 276m²

Number of bedrooms
4
Number of bathrooms
3
Number of Living Spaces
3
Carport or Garage Size
2

There’s a nod to retro architecture in the design of the Tay, a resplendently modern two-level home defined by clever flow and sleek minimalist styling. A downstairs master suite and a large flexi-space upstairs ensure the home can evolve as the needs of you and your family do likewise, while excellent indoor/outdoor flow promotes a strong connection to your surroundings.

More