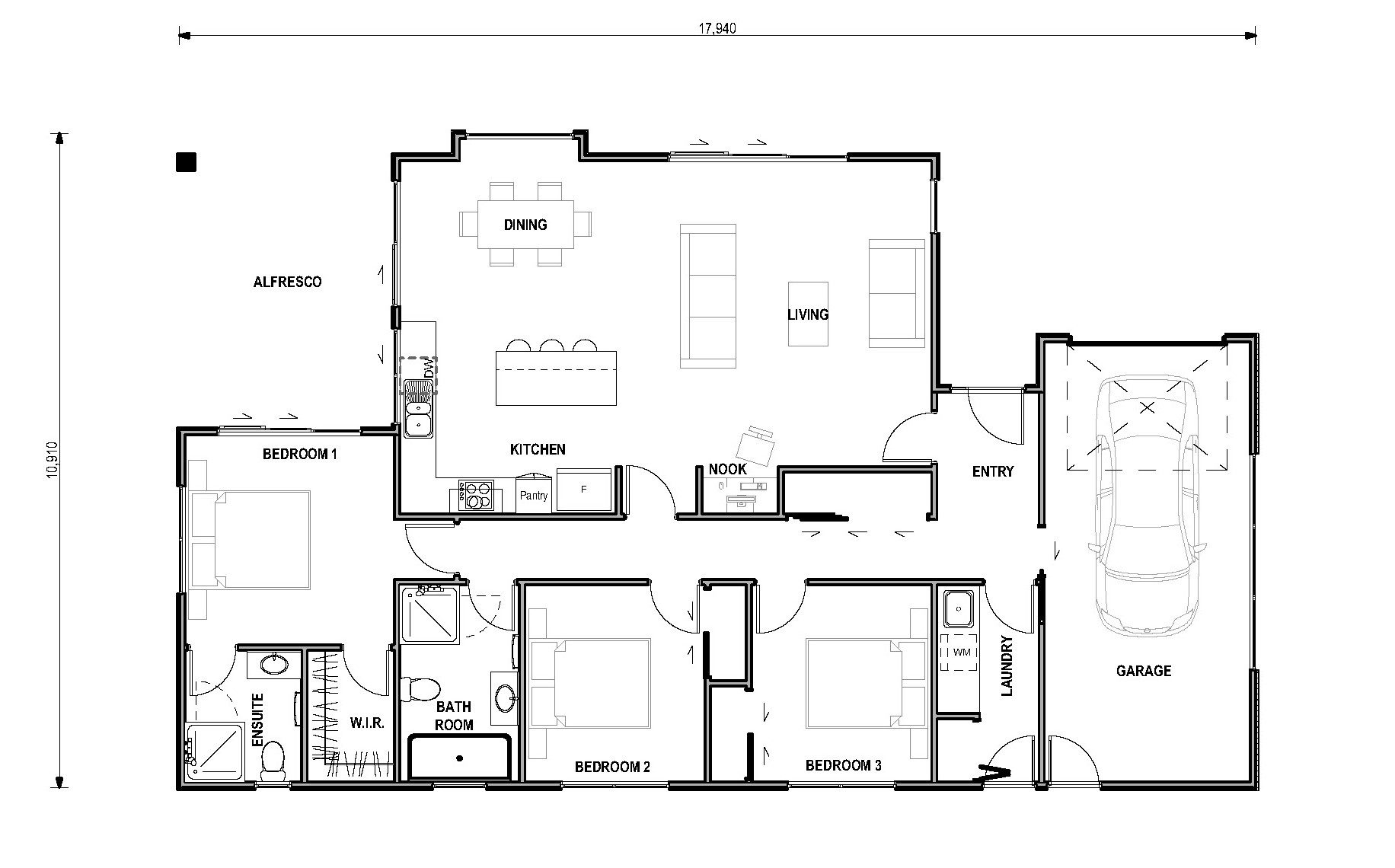
Hamilton — King

King
Number of bedrooms
Bedrooms 3
Number of bathrooms
Bathrooms 2
Number of living spaces
Living spaces 1
Number of toilets
Toilets 2
Carport or Garage Size
Carport or Garage Size 1
Floor size:
156m²

Show Home Permanently Closed

Features

With its contemporary exterior and its timeless design, the King really does offer the best of both worlds. The intelligent layout includes a sun-soaked kitchen/dining space which opens on to a fabulous outdoor entertaining area, with the cosy window seat just one of many lovely little touches. Of course, there’s also ample storage, a separate laundry, and a double garage!

Hamilton – 25 Oralee Terrace, Peacocke 167m²

Number of bedrooms
3
Number of bathrooms
2
Number of Living Spaces
1
Carport or Garage Size
2

Show Home Permanently Closed

More

Tauranga – Tui 78m²

Number of bedrooms
3
Number of bathrooms
2
Number of Living Spaces
1

This popular three-bedroom design ticks all the boxes when it comes to both functionality and value for money.

More