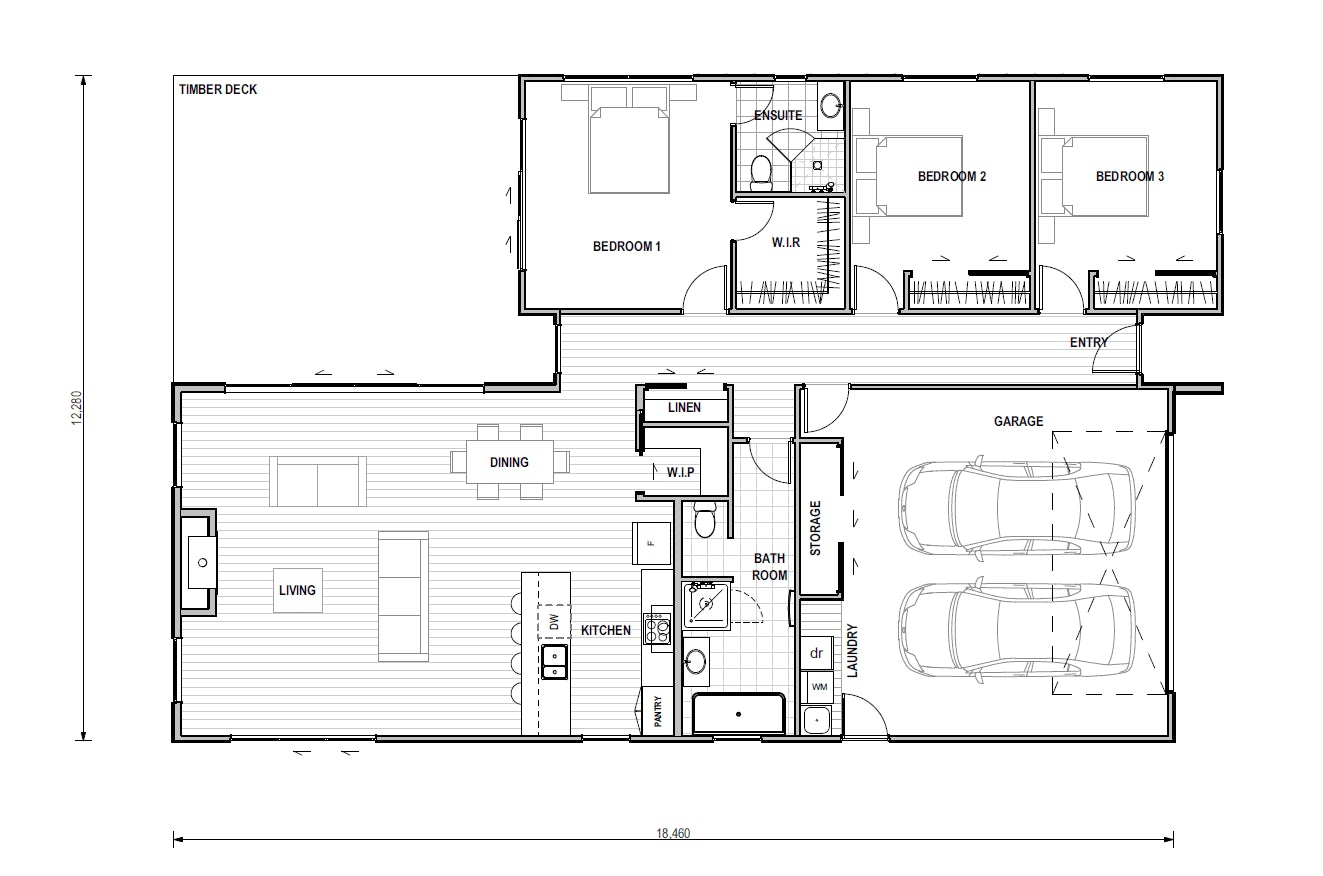
Balclutha — Cuba

Number of bedrooms
Bedrooms 3
Number of bathrooms
Bathrooms 2
Number of living spaces
Living spaces 1
Number of toilets
Toilets 2
Carport or Garage Size
Carport or Garage Size 2
Floor size:
195m²

Show Home Permanently Closed

Features

This show home is now closed.

Other show homes you may be interested in

West Auckland – Custom 272m²

Masthead v7
Number of bedrooms
4
Number of bathrooms
3
Number of Living Spaces
2
Carport or Garage Size
2

This show home is now closed.

More

Wanganui – Modified Tui 78m²

s20221831
Number of bedrooms
3
Number of bathrooms
1
Number of Living Spaces
1

This popular three-bedroom design ticks all the boxes when it comes to both functionality and value for money. Every inch of space is put to good use in the Tui, making it ideal for extended family, student accommodation or a home away from home during the holidays.

More