Hamilton — 25 Oralee Terrace, Peacocke

Number of bedrooms
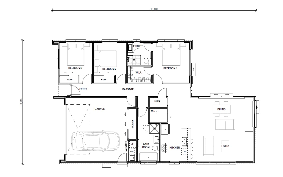
Bedrooms 3
Number of bathrooms
Bathrooms 2
Number of living spaces
Living spaces 1
Number of toilets
Toilets 2
Carport or Garage Size
Carport or Garage Size 2
Floor size:
167m²

Show Home Permanently Closed

Features

Discover Our Stunning New Show Home!
The sleek metallic black brick and warm cedar cladding of this home delivers a minimalist aesthetic with enduring street appeal and architectural impact ideal for residential sections.
The open-plan light-filled living space is elevated by a luxurious raked
ceiling. A timber feature wall defines the living area while the high ceiling creates a spacious sense of balance and comfort.

View more show homes

Hamilton – King 156m²

Number of bedrooms
3
Number of bathrooms
2
Number of Living Spaces
1
Carport or Garage Size
1

This show home is now closed.

More

Cambridge – Konini 70m²

Number of bedrooms
2
Number of bathrooms
1
Number of Living Spaces
1

Crisp, clean lines define the design of this modern home, which boasts two bedrooms, a highly-functional kitchen and plenty of storage. Large stacker-slider doors offer an easy connection to the world outside.

More