Wilson
Number of bedrooms
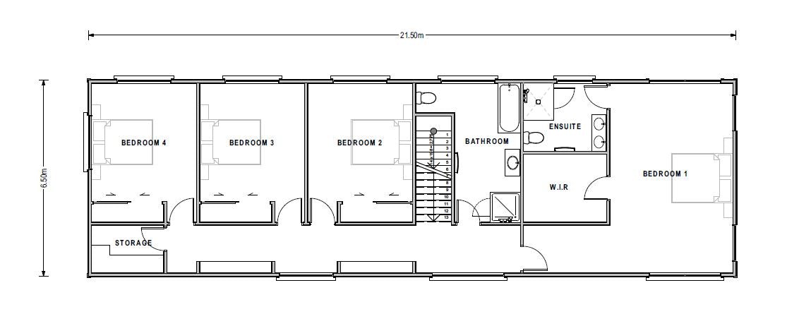
Bedrooms 4
Number of bathrooms
Bathrooms 2
Number of living spaces
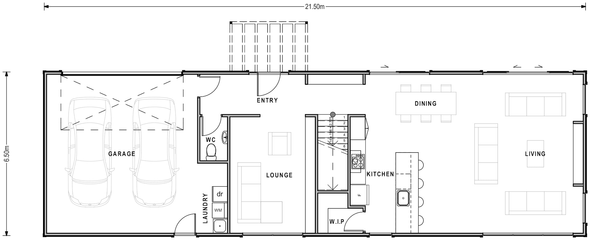
Living spaces 2
Number of toilets
Toilets 3
Carport or Garage Size
Carport or Garage Size 2
Floor size:
280m²

There’s a real Kiwi feel about the Wilson, with its barn-inspired form making it perfect for both country or city environments. Spread over two levels, this contemporary home features four large bedrooms, including a luxurious master suite. Downstairs, the fabulous kitchen is complemented by generous open-plan living spaces and a separate lounge/media room, with built-in shelving adding to the functionality.

Features
  • Architectural styling
  • Media room
  • Generous garage
  • Built-in feature shelving

Related Plans

Dominion Metro Range 177m²

Number of bedrooms
3
Number of bathrooms
2
Number of Living Spaces
1
Number of offices
1
Carport or Garage Size
1

Create your own funky industrial apartment with the Dominion! Behind the sleek, metal-clad exterior sits a light-filled stairwell, an expansive open-plan living area and three good-sized bedrooms. There’s also ample storage and a convenient office area/library nook.

View Plan