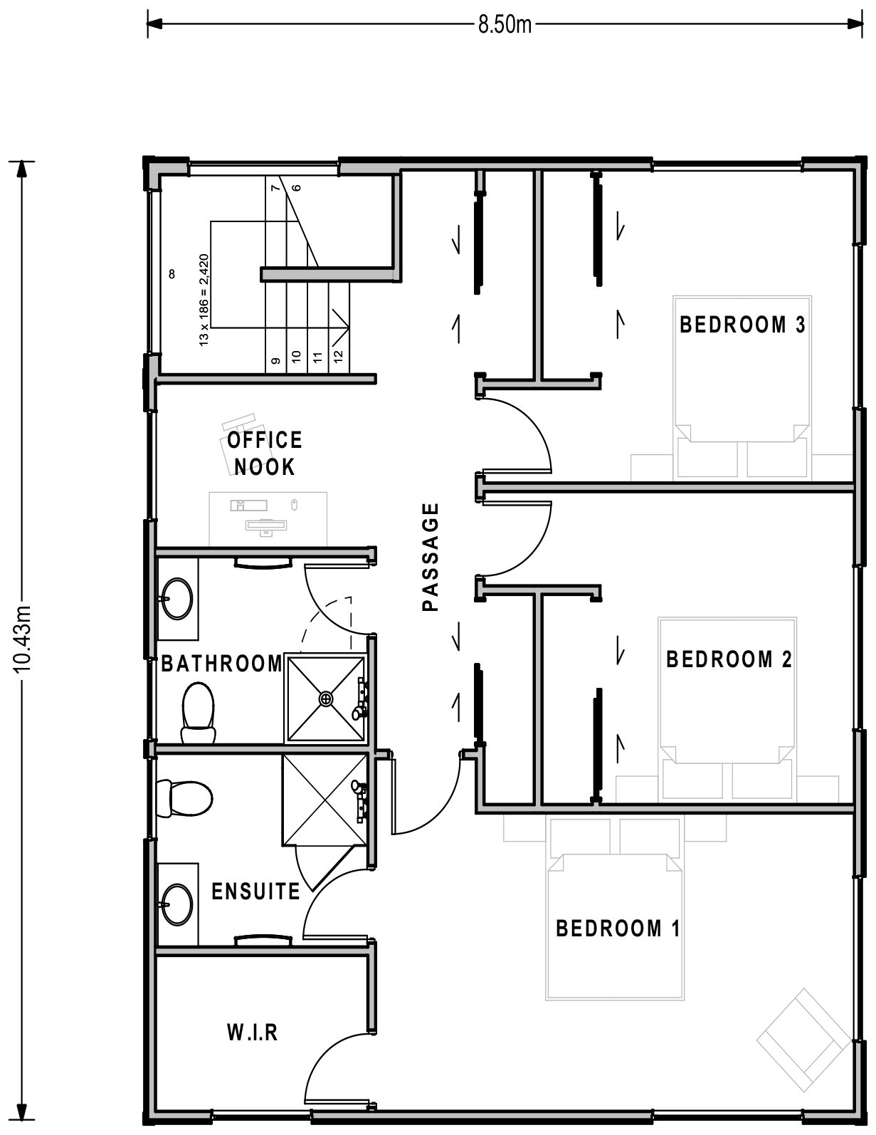
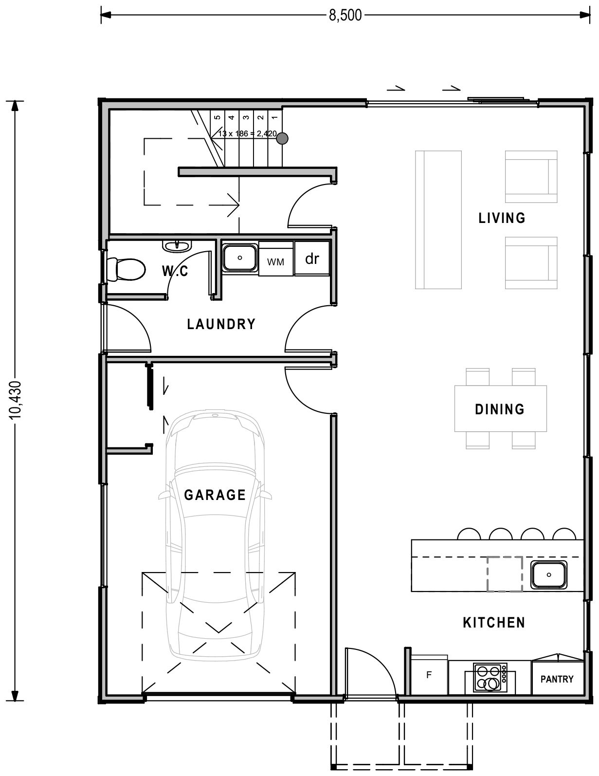
Dominion

Number of bedrooms
Bedrooms 3
Number of bathrooms
Bathrooms 2
Number of offices
Offices 1
Number of living spaces
Living spaces 1
Number of toilets
Toilets 3
Carport or Garage Size
Carport or Garage Size 1
Floor size:
177m²

Create your own funky industrial apartment with the Dominion! Behind the sleek, metal-clad exterior sits a light-filled stairwell, an expansive open-plan living area and three good-sized bedrooms. There’s also ample storage and a convenient office area/library nook.

Features
  • Contemporary exterior
  • Good-sized bedrooms
  • Mezzanine office area
  • Townhouse duplex option

Related Plans

Wilson Metro Range 280m²

House - Metro Range Wilson
Number of bedrooms
4
Number of bathrooms
2
Number of Living Spaces
2
Carport or Garage Size
2

There’s a real Kiwi feel about the Wilson, with its barn-inspired form making it perfect for both country or city environments. Spread over two levels, this contemporary home features four large bedrooms, including a luxurious master suite. Downstairs, the fabulous kitchen is complemented by generous open-plan living spaces and a separate lounge/media room, with built-in shelving adding to the functionality.

View Plan