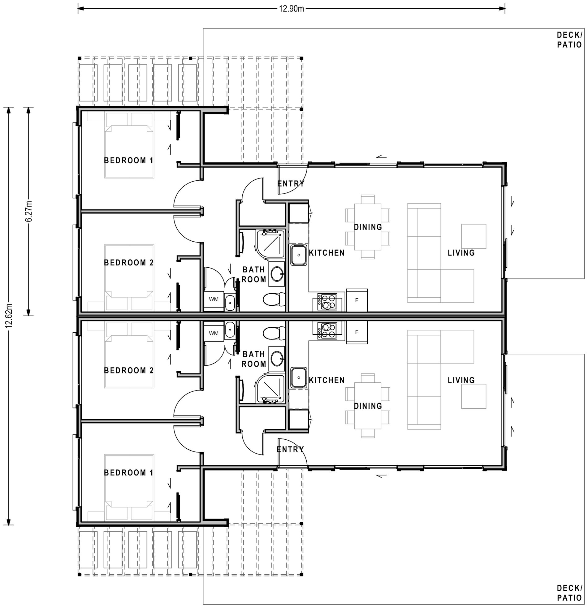
Victoria

Number of bedrooms
Bedrooms 2
Number of bathrooms
Bathrooms 1
Number of living spaces
Living spaces 1
Number of toilets
Toilets 1
Floor size:
65m²

As a compact standalone or duplex option, this modern home is the perfect investment property or an ideal starter for families.

Features
  • Entrance pergola
  • Full kitchen
  • Two double bedrooms

Related Plans

Aoraki Lifestyle Range 134m²

House - Lifestyle Range Aoraki
Number of bedrooms
2
Number of bathrooms
2
Number of Living Spaces
1

Perfectly suited to dense bush or coastal spots overlooking the ocean, the Aoraki has been designed with narrow sites in mind. Inside, a luxurious master bedroom features a large walk-in wardrobe and a full ensuite (complete with freestanding bath), while outside the wrap-around veranda is the ideal spot from which to appreciate the view.

View Plan