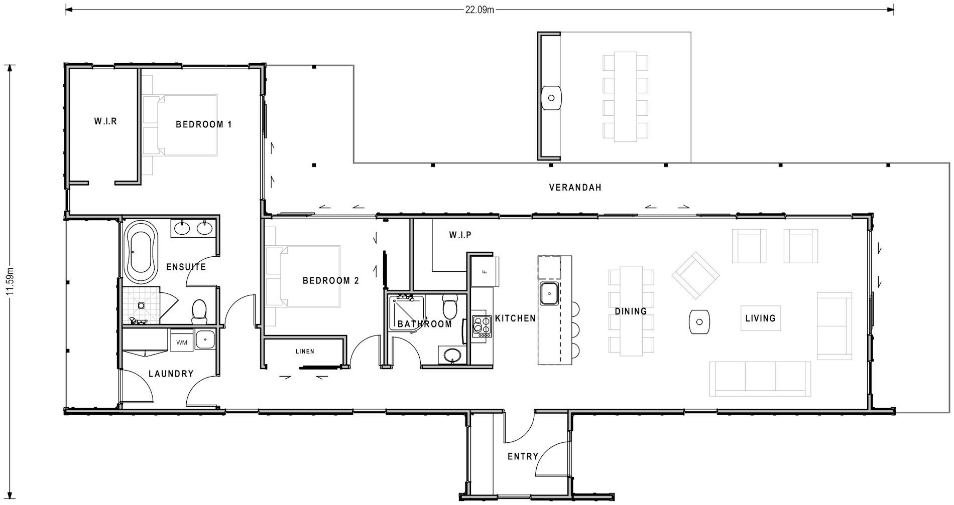
Aoraki
Number of bedrooms
Bedrooms 2
Number of bathrooms
Bathrooms 2
Number of living spaces
Living spaces 1
Number of toilets
Toilets 2
Floor size:
134m²

Perfectly suited to dense bush or coastal spots overlooking the ocean, the Aoraki has been designed with narrow sites in mind. Inside, a luxurious master bedroom features a large walk-in wardrobe and a full ensuite (complete with freestanding bath), while outside the wrap-around veranda is the ideal spot from which to appreciate the view.

Features
  • Wrap around veranda
  • Luxurious full ensuite bathroom

Related Plans

Victoria Metro Range 65m²

Number of bedrooms
2
Number of bathrooms
1
Number of Living Spaces
1

As a compact standalone or duplex option, this modern home is the perfect investment property or an ideal starter for families.

View Plan