Cumberland

Cumberland
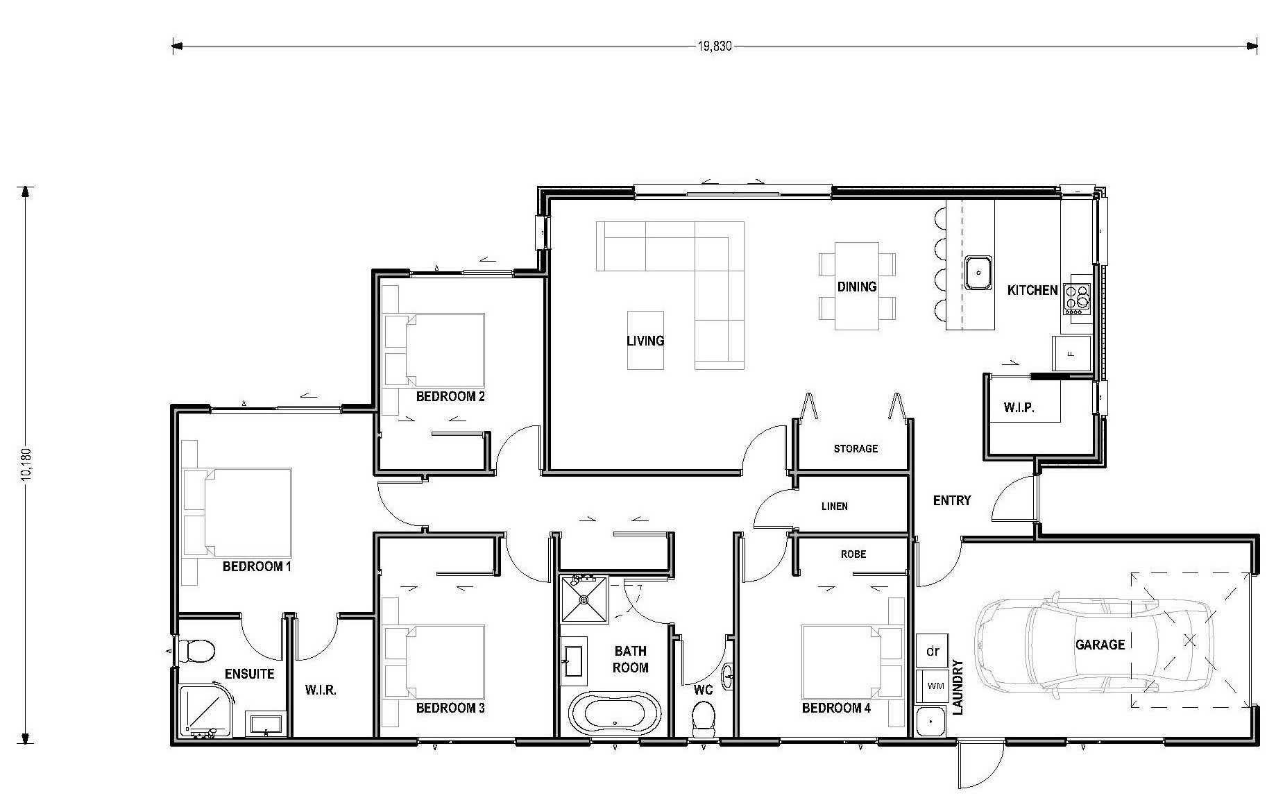
Number of bedrooms
Bedrooms 4
Number of bathrooms
Bathrooms 2
Number of living spaces
Living spaces 1
Number of toilets
Toilets 2
Carport or Garage Size
Carport or Garage Size 1
Floor size:
161m²

The Cumberland is where contemporary living meets family comfort. Enjoy the inviting open plan dining and living area, creating the perfect space for family gatherings. With four bedrooms, this home offers the perfect setting for modern family living, and plenty of storage for a growing family.

Features
  • 4 bedrooms
  • Abundant storage options
  • Contemporary style

Related Plans

Stafford Metro Range 154m²

Number of bedrooms
3
Number of bathrooms
2
Number of Living Spaces
1
Number of offices
1
Carport or Garage Size
1

Step into a sanctuary of modern living with the Stafford. This well designed 3-bedroom home invites effortless entertainment with its open-plan elegance. Indulge in the master suite's ensuite and walk-in wardrobe, while generous storage adds practicality, and a modern kitchen layout with a convenient walk-in pantry elevate convenience. Plus, a dedicated office space ensures productivity in this perfect haven for contemporary living.

View Plan

Eden Metro Range 154m²

Number of bedrooms
4
Number of bathrooms
2
Number of Living Spaces
1
Carport or Garage Size
1

Welcome to the Eden, where modern and stylish family living thrives even in compact spaces. This home strikes the perfect balance between generous living areas and four bedrooms, harmonising seamlessly with practicality. With a versatile layout and ample storage, it's ideal for families and those who love to host, offering a delightful blend of functionality and contemporary design.

View Plan