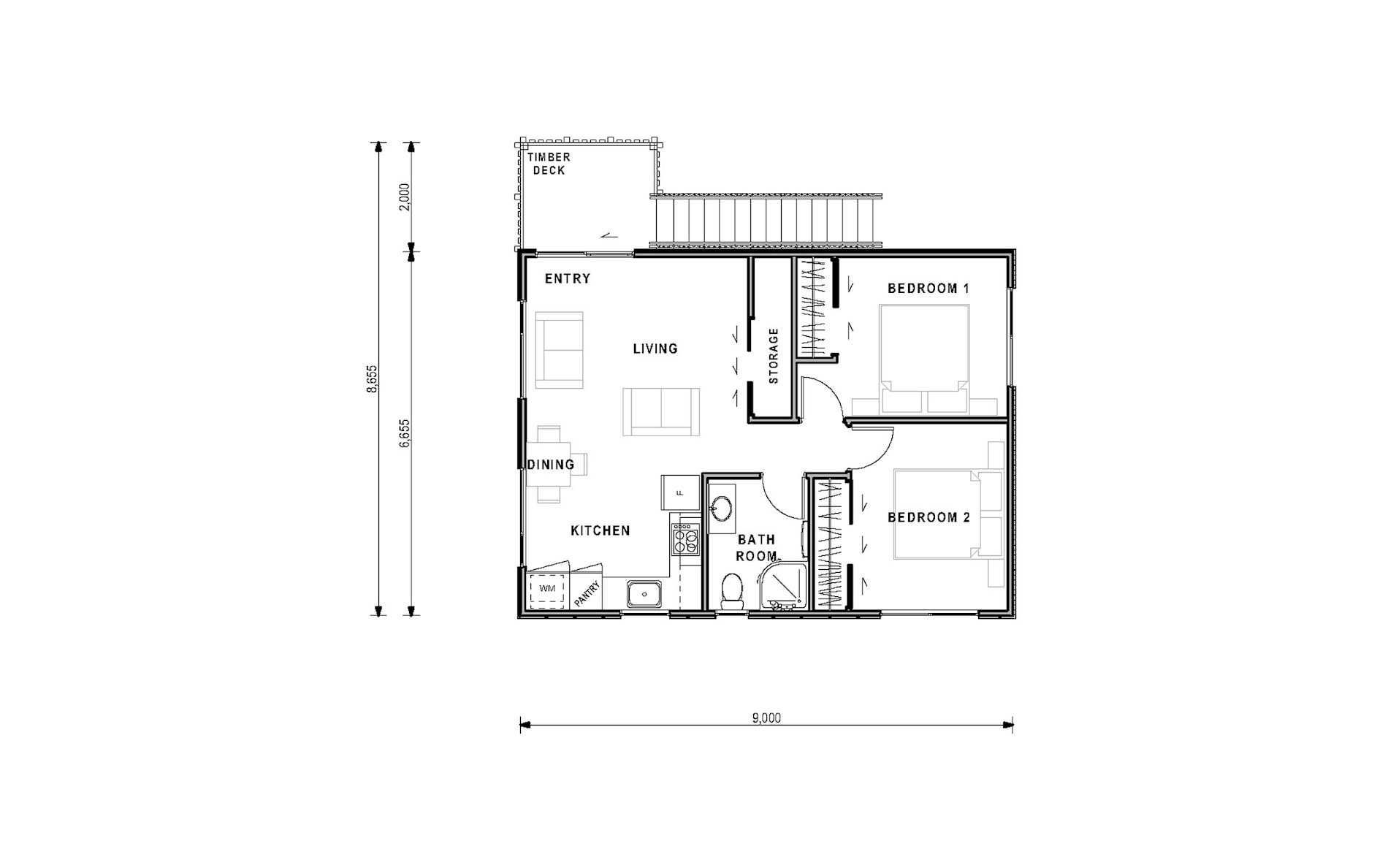
Number of bedrooms
Bedrooms 2
Number of bathrooms
Bathrooms 1
Number of living spaces
Living spaces 1
Number of toilets
Toilets 1
Carport or Garage Size
Carport or Garage Size 2
Floor size:
120m²

Add value to your existing property with the Albert!  Based around a compact, 9x6.6m footprint, the Albert features a garage on the ground floor and a two-bedroom, self-contained unit on top, making it perfect for extended family or as an additional income stream.

Features
  • Compact footprint
  • Large garage
  • Home & income potential

Other plans you may be interested in

Wilson Metro Range 280m²

Number of bedrooms
4
Number of bathrooms
2
Number of Living Spaces
2
Carport or Garage Size
2

There’s a real Kiwi feel about the Wilson, with its barn-inspired form making it perfect for both country or city environments. Spread over two levels, this contemporary home features four large bedrooms, including a luxurious master suite. Downstairs, the fabulous kitchen is complemented by generous open-plan living spaces and a separate lounge/media room, with built-in shelving adding to the functionality.

View Plan

Dominion Metro Range 177m²

Number of bedrooms
3
Number of bathrooms
2
Number of Living Spaces
1
Carport or Garage Size
1

Create your own funky industrial apartment with the Dominion! Behind the sleek, metal-clad exterior sits a light-filled stairwell, an expansive open-plan living area and three good-sized bedrooms. There’s also ample storage and a convenient office area/library nook.

View Plan