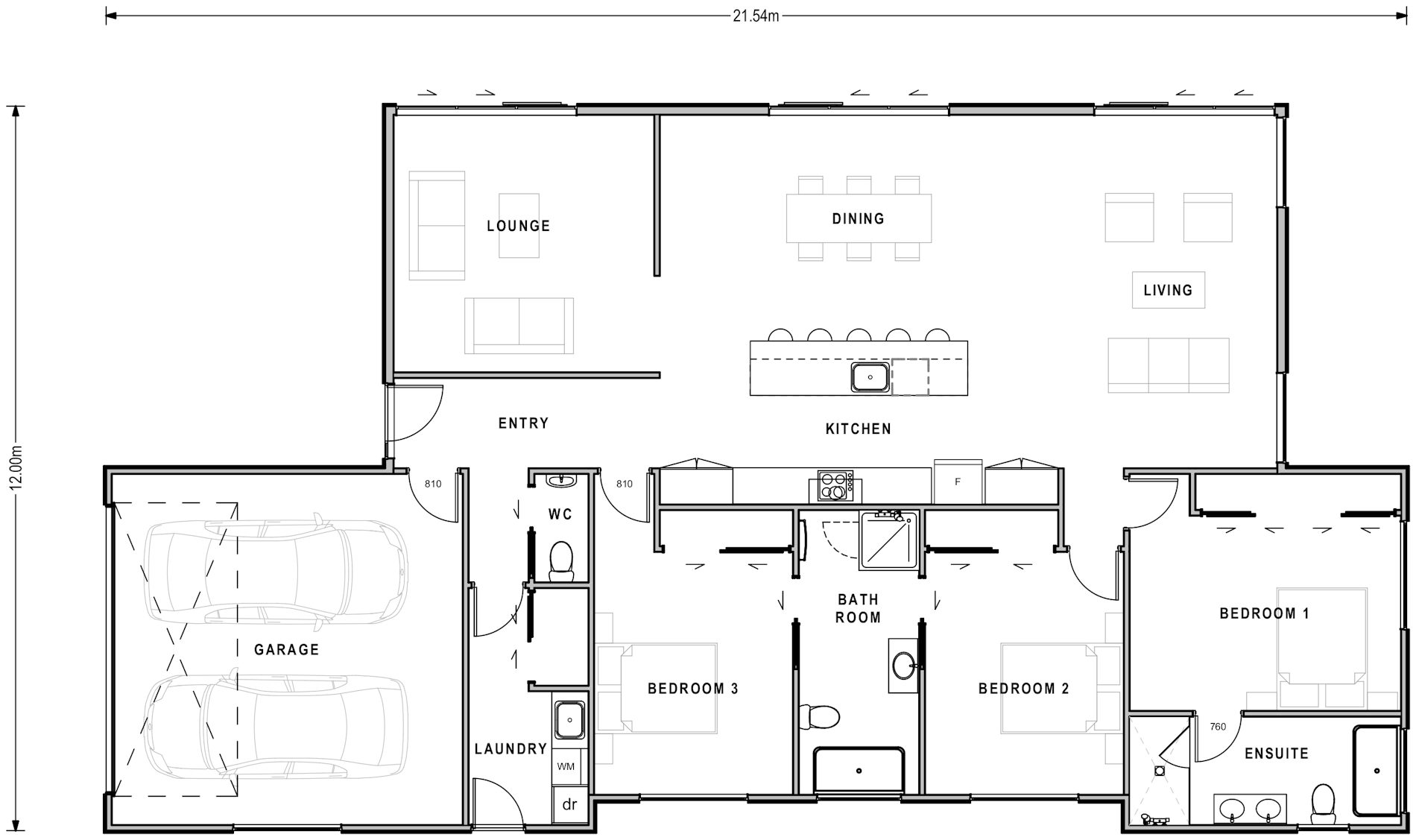
Number of bedrooms
Bedrooms 3
Number of bathrooms
Bathrooms 2
Number of living spaces
Living spaces 2
Number of toilets
Toilets 3
Carport or Garage Size
Carport or Garage Size 2
Floor size:
214m²

The efficient, streamlined design of the Wanaka opens the home up to the sun and provides plenty of opportunities to interact with your environment. A raking ceiling in the lounge and open-plan living area contributes to an undeniable sense of space, while a large, galley-style kitchen ensures the ability to cater to any and every occasion. A second ensuite, which is shared by bedrooms two and three, is an added bonus.

Features
  • Raking ceiling
  • Dual access second ensuite bathroom
  • Large bedrooms
  • Contemporary exterior

Related Plans

Te Anau Lifestyle Range 195m²

Number of bedrooms
3
Number of bathrooms
2
Number of Living Spaces
1
Carport or Garage Size
2

A feature portico draws you into this delightful double-pavilion home, designed with one wing to host the bedrooms and another to house the communal areas, including the large open-plan living space. Clutter will never be an issue in the Te Anau, with a butler’s pantry, a walk-in storage cupboard and a handy boot seat at the front door all helping to keep things orderly!

View Plan

Sumner Lifestyle Range 245m²

Number of bedrooms
3
Number of bathrooms
2
Number of Living Spaces
2
Carport or Garage Size
2

Intelligent design and minimalist styling come together in the Sumner, a contemporary home which features a stunning, enclosed outdoor living area. Large windows flood the home with natural light and ensure you can always appreciate your view, while built-in shelving and an array of clever storage solutions help to make life that little bit easier.

View Plan