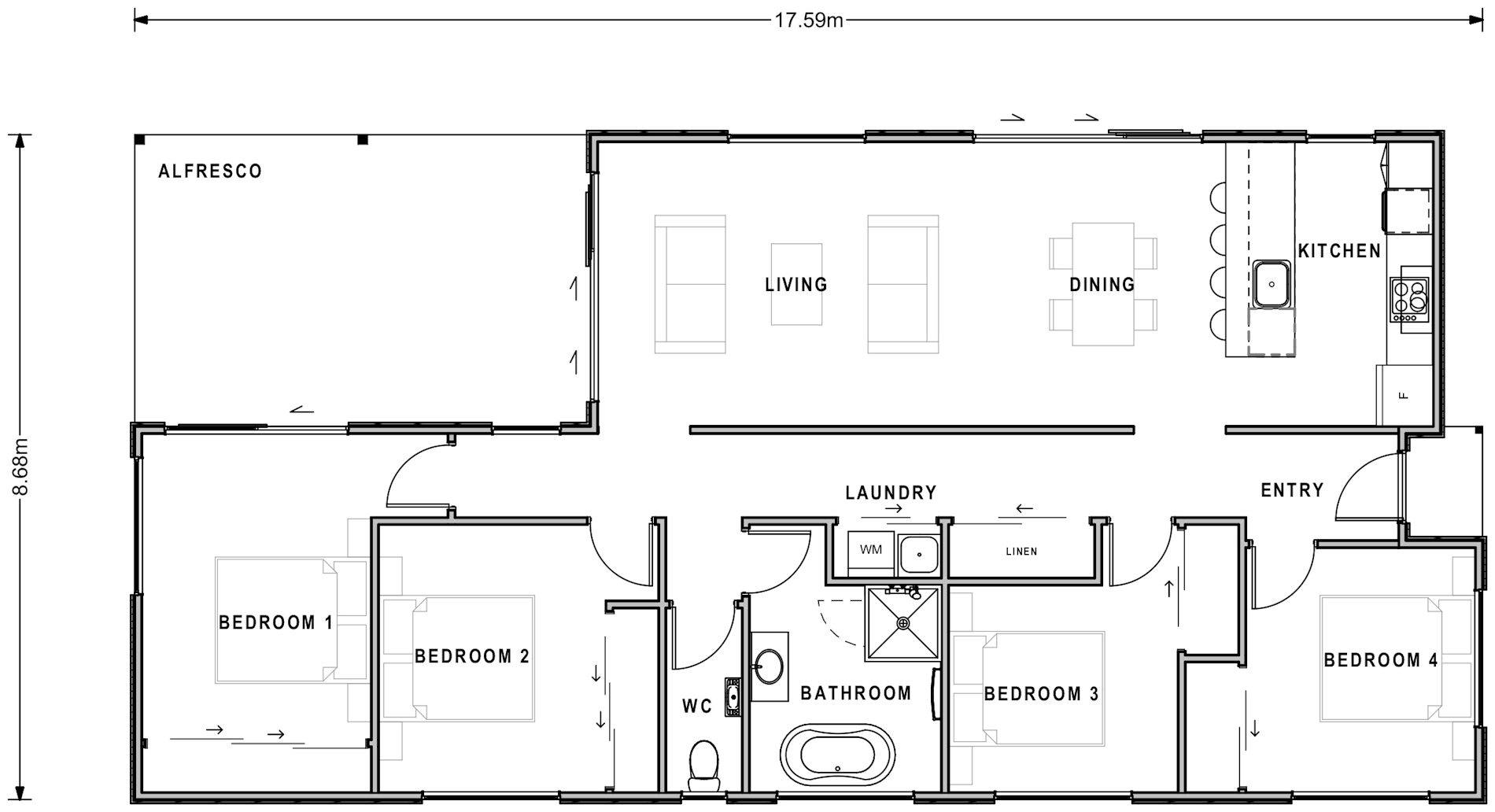
Awaroa
Number of bedrooms
Bedrooms 4
Number of bathrooms
Bathrooms 1
Number of living spaces
Living spaces 1
Number of toilets
Toilets 1
Floor size:
126m²

When it comes to a family home or holiday accommodation, you'd be hard-pressed to find better value for money than the Awaroa. Simple yet efficient in design, the home enjoys excellent flow, with easy access to the sheltered outdoor entertaining spaces.

Features
  • Modern exterior styling
  • Large alfresco living area
  • Four double bedrooms

Related Plans

Pukaki Lifestyle Range 268m²

Number of bedrooms
4
Number of bathrooms
3
Number of Living Spaces
2
Carport or Garage Size
2

There’s plenty of space and plenty of personality on offer in the Pūkakī, a modern take on the classic colonial villa which boasts two master bedrooms. Outside, the wrap-around veranda contributes to the charm of an expansive contemporary home.

View Plan

Tekapo Lifestyle Range 265m²

Number of bedrooms
4
Number of bathrooms
2
Number of Living Spaces
2
Carport or Garage Size
2

Clean lines and a strong architectural influence set the Tekapo apart, contributing to a home that’s sure to impress even the most discerning visitor! The covered outdoor entertaining space is a real highlight, as is the luxurious master suite, while an array of thoughtful storage solutions ensure the home is as practical as it is visually compelling.

View Plan