Number of bedrooms
Bedrooms 3
Number of bathrooms
Bathrooms 2
Number of living spaces
Living spaces 1
Number of toilets
Toilets 2
Carport or Garage Size
Carport or Garage Size 2
Floor size:
195m²

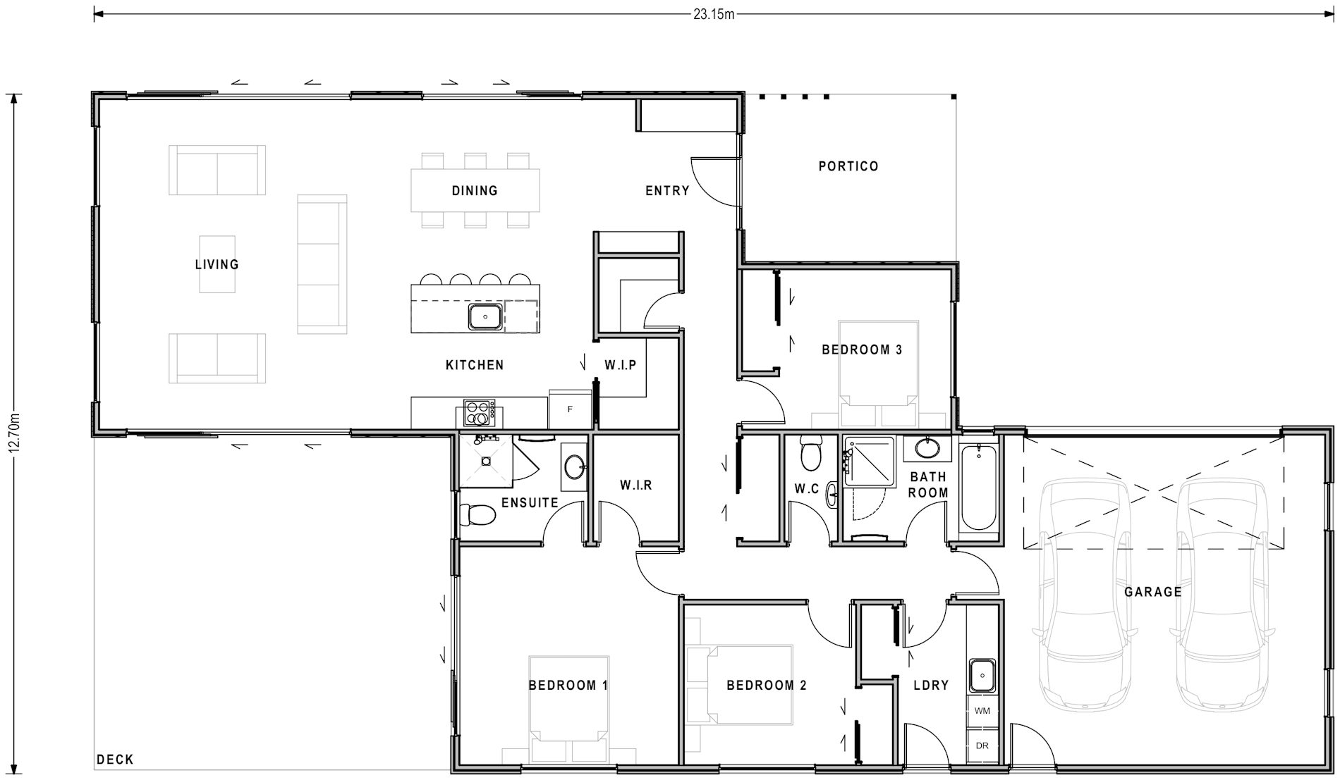
A feature portico draws you into this delightful double-pavilion home, designed with one wing to host the bedrooms and another to house the communal areas, including the large open-plan living space. Clutter will never be an issue in the Te Anau, with a butler’s pantry, a walk-in storage cupboard and a handy boot seat at the front door all helping to keep things orderly!

Features
  • Good storage
  • Feature entry portico
  • Side entry garage
  • Pavilion styling

Related Plans

Clutha Lifestyle Range 85m²

Number of bedrooms
2
Number of bathrooms
1
Number of Living Spaces
1

Compact but fabulously practical, this lovely cottage offers the option of two or three bedrooms. If two will suffice the third space could easily become a separate dining area, a hobby room or an office – the choice is yours! Ideal as a holiday home, rental property or accommodation for extended family, it also includes a highly-functional kitchen.

View Plan

Kenepuru Lifestyle Range 269m²

Number of bedrooms
4
Number of bathrooms
2
Number of Living Spaces
2
Carport or Garage Size
2

They say the kitchen is the heart of the home, and that's certainly true in the Kenepuru. From the large walk-in butler's pantry to the stacked windows which allow you to serve directly outside, every element of this gourmet's dream was designed to enhance the art of cooking. Boxed ceilings create character in the living areas, four large bedrooms provide ample accommodation, and an oversized garage (with room for the boat) adds to the appeal.

View Plan