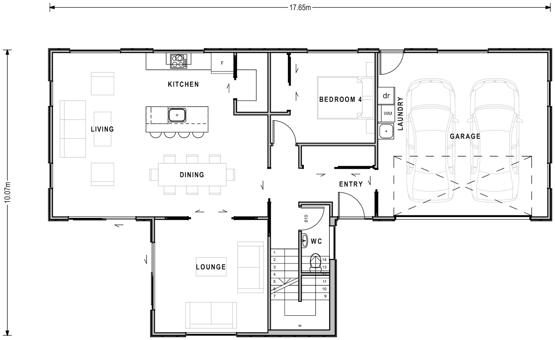
Moeraki
Number of bedrooms
Bedrooms 4
Number of bathrooms
Bathrooms 2
Number of living spaces
Living spaces 2
Number of toilets
Toilets 3
Carport or Garage Size
Carport or Garage Size 2
Floor size:
212m²

Contemporary elegance and thoughtful functionality live side-by-side in the Moeraki, a four-bedroom home designed to capture the sun, and the views. No detail has been overlooked, with a downstairs toilet tucked under the stairs and smart storage solutions located on the upper level. 

Features
  • Good storage
  • Two living areas
  • Four double bedrooms

Related Plans

Tekapo Lifestyle Range 265m²

Number of bedrooms
4
Number of bathrooms
2
Number of Living Spaces
2
Carport or Garage Size
2

Clean lines and a strong architectural influence set the Tekapo apart, contributing to a home that’s sure to impress even the most discerning visitor! The covered outdoor entertaining space is a real highlight, as is the luxurious master suite, while an array of thoughtful storage solutions ensure the home is as practical as it is visually compelling.

View Plan

Sumner Lifestyle Range 245m²

Number of bedrooms
3
Number of bathrooms
2
Number of Living Spaces
2
Carport or Garage Size
2

Intelligent design and minimalist styling come together in the Sumner, a contemporary home which features a stunning, enclosed outdoor living area. Large windows flood the home with natural light and ensure you can always appreciate your view, while built-in shelving and an array of clever storage solutions help to make life that little bit easier.

View Plan