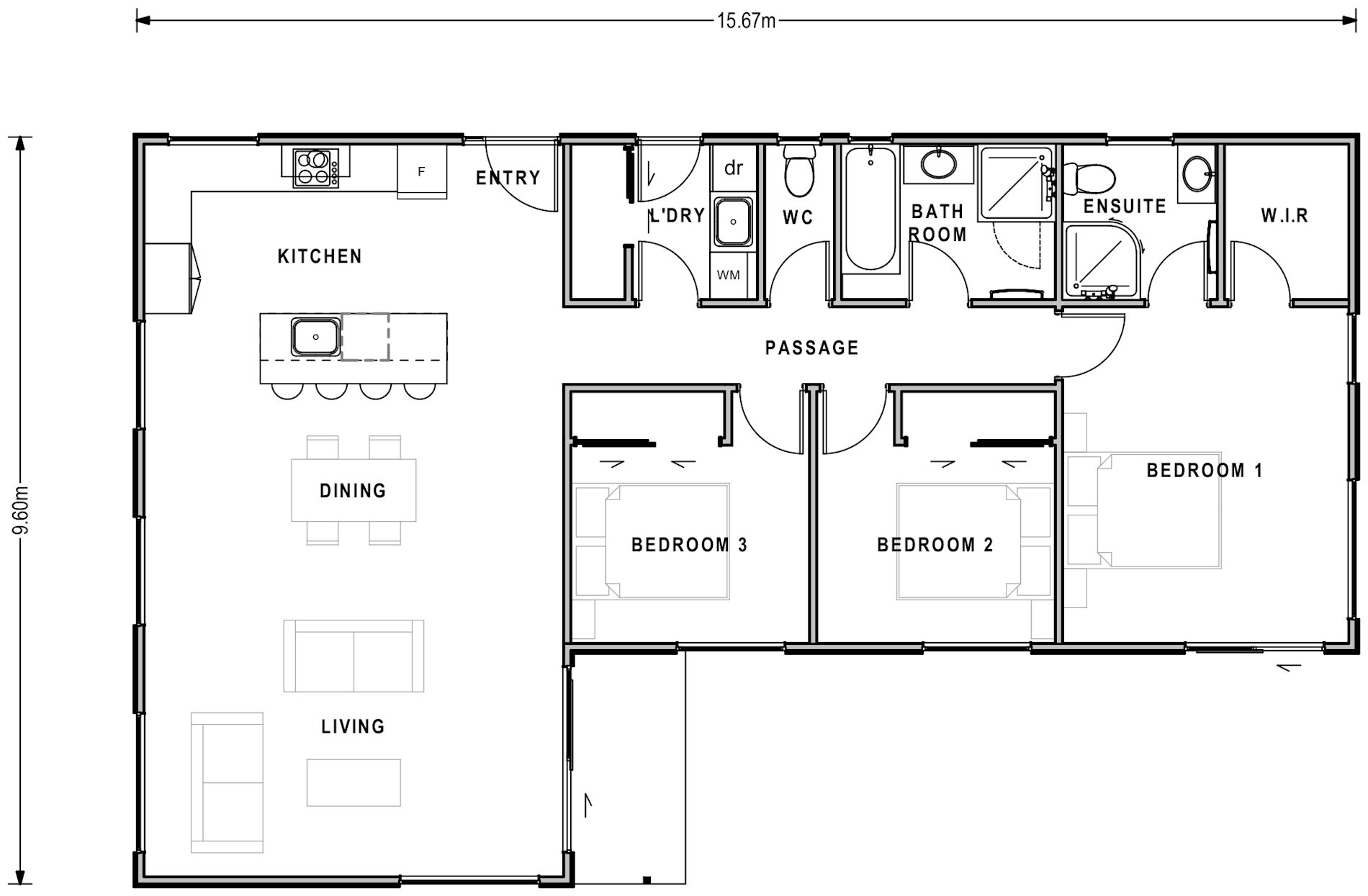
Weka
Number of bedrooms
Bedrooms 3
Number of bathrooms
Bathrooms 2
Number of living spaces
Living spaces 1
Number of toilets
Toilets 2
Floor size:
120m²

The kitchen is the hub of this stylish home, while the adjoining living areas mean you can watch the kids while you cook up a storm. There’s plenty of room for entertaining, and a delightful master bedroom complete with ensuite and walk-in wardrobe.

Features
  • Spacious master bedroom with walk-in wardrobe and ensuite
  • Open-plan living space with large kitchen
  • Separate laundry

Related Plans

Kakapo Freedom Range 116m²

Number of bedrooms
3
Number of bathrooms
1
Number of Living Spaces
1

Perfect as a holiday home, investment property, or easy-care home for those looking to downsize, the Kakapo is both spacious and efficient. The streamlined kitchen, which overlooks the large dining and living areas, forms the hub of the home, while three good-sized bedrooms (including a master bedroom that enjoys direct access outside) offer ample accommodation.

View Plan

Karamu Freedom Range 126m²

Number of bedrooms
3
Number of bathrooms
2
Number of Living Spaces
1

Behind the streamlined exterior of the Karamu sit three large bedrooms (with spacious wardrobes), a single-wall kitchen complete with walk-in pantry, and an abundance of smart storage solutions. The raked ceiling is a stand-out feature, helping to enhance the sense of space in this stylish home.

View Plan