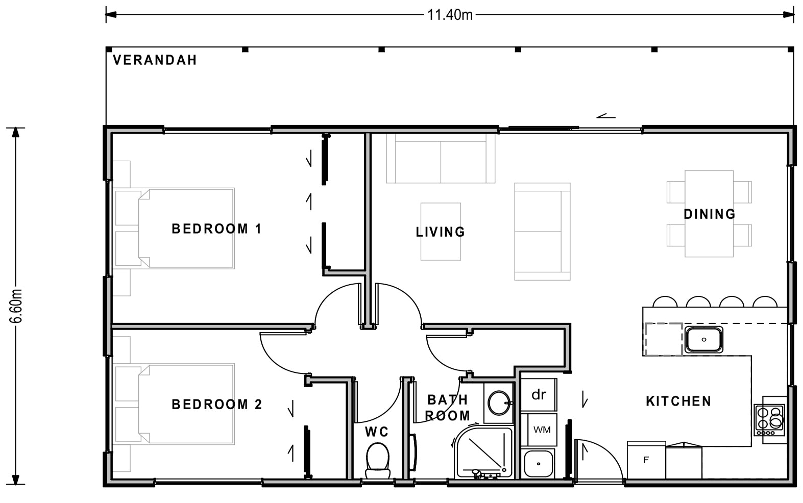
Number of bedrooms
Bedrooms 2
Number of bathrooms
Bathrooms 1
Number of living spaces
Living spaces 1
Number of toilets
Toilets 1
Floor size:
75m²

Perfectly at home on the lake, at the beach, or providing additional accommodation in the backyard, this cottage-style home boasts all the essentials, including a good-sized kitchen and generous wardrobe space.

Features
  • Good-sized bedrooms and wardrobes
  • Separate toilet
  • Feature veranda
  • Retirement or holiday living

Related Plans

Clutha Lifestyle Range 85m²

House - Lifestyle Range Clutha
Number of bedrooms
2
Number of bathrooms
1
Number of Living Spaces
1

Compact but fabulously practical, this lovely cottage offers the option of two or three bedrooms. If two will suffice the third space could easily become a separate dining area, a hobby room or an office – the choice is yours! Ideal as a holiday home, rental property or accommodation for extended family, it also includes a highly-functional kitchen.

View Plan

Konini Freedom Range 70m²

18 05 26 Versatile Konini 001
Number of bedrooms
2
Number of bathrooms
1
Number of Living Spaces
1

Crisp, clean lines define the design of this modern home, which boasts two bedrooms, a highly-functional kitchen and plenty of storage. Large stacker-slider doors offer an easy connection to the world outside.

View Plan