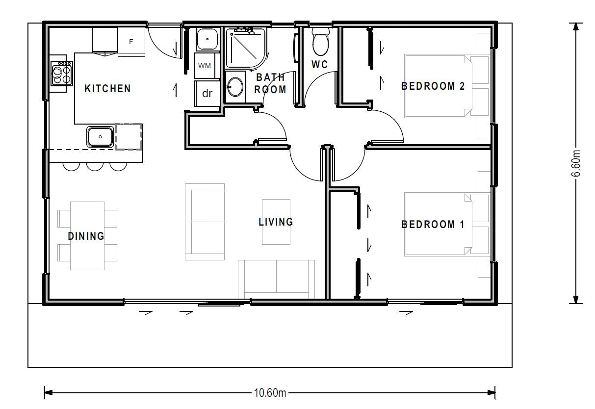
Konini
Number of bedrooms
Bedrooms 2
Number of bathrooms
Bathrooms 1
Number of living spaces
Living spaces 1
Number of toilets
Toilets 1
Floor size:
70m²

Crisp, clean lines define the design of this modern home, which boasts two bedrooms, a highly-functional kitchen and plenty of storage. Large stacker-slider doors offer an easy connection to the world outside.

Features
  • Modern exterior
  • Open plan living spaces
  • Good storage

Related Plans

Kakapo Freedom Range 116m²

Number of bedrooms
3
Number of bathrooms
1
Number of Living Spaces
1

Perfect as a holiday home, investment property, or easy-care home for those looking to downsize, the Kakapo is both spacious and efficient. The streamlined kitchen, which overlooks the large dining and living areas, forms the hub of the home, while three good-sized bedrooms (including a master bedroom that enjoys direct access outside) offer ample accommodation.

View Plan

Ngaio Freedom Range 57m²

Number of bedrooms
2
Number of bathrooms
1
Number of Living Spaces
1

Elegant and charming, this compact cottage would make a great holiday home, rental or second dwelling for extended family members. Inside, two good-sized bedrooms are complemented by a well-appointed bathroom, while outside the cute veranda is the perfect place to sit back, relax, and watch the world go by.

View Plan