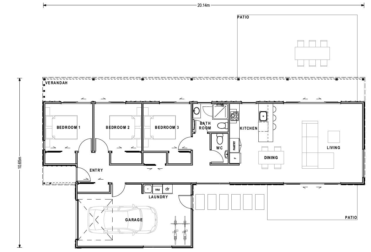
Number of bedrooms
Bedrooms 3
Number of bathrooms
Bathrooms 1
Number of living spaces
Living spaces 1
Number of toilets
Toilets 2
Carport or Garage Size
Carport or Garage Size 1
Floor size:
131m²

Bathed in natural light and exuding a warm and welcoming ambience, this lovely home features a living area that captures three different views and offers two distinct outdoor living options.

Features
  • Generous single garage with storage
  • Contemporary exterior with veranda
  • Great for the narrow site

Related Plans

Robin Freedom Range 94m²

18 05 26 Versatile Robin
Number of bedrooms
2
Number of bathrooms
1
Number of Living Spaces
1
Carport or Garage Size
1

A clever, compact two-bedroom design with great storage, fabulous indoor/outdoor flow, and an oversized single garage complete with workbench. 

View Plan

Ruru Freedom Range 178m²

House - Freedom Range Ruru
Number of bedrooms
3
Number of bathrooms
2
Number of Living Spaces
1
Carport or Garage Size
2

A smart, contemporary home with masses of street appeal. The heart of this home is undoubtedly the kitchen, with exterior sliders opposite the island bench allowing you to chat to guests out on the deck while you whip up your culinary masterpieces!

View Plan