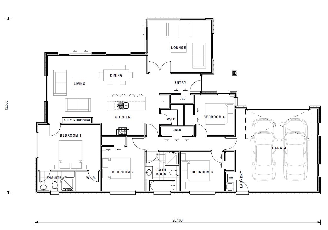
Kauri
Number of bedrooms
Bedrooms 4
Number of bathrooms
Bathrooms 2
Number of living spaces
Living spaces 2
Number of toilets
Toilets 2
Carport or Garage Size
Carport or Garage Size 2
Floor size:
182m²

Although designed for smaller sites the Kauri is jam-packed full of features! A total of four bedrooms provide an abundance of accommodation, while two bathrooms help make the morning rush-hour run smoothly! There’s plenty of storage (including a walk-in pantry with built-in shelving) as well as a side-entry double garage.

Features
  • Compact family home
  • Lots of storage
  • Indoor/outdoor flow from all living areas
  • Side-entry double garage

Related Plans

Blake Family Range 202m²

Number of bedrooms
3
Number of bathrooms
2
Number of Living Spaces
2
Number of offices
1
Carport or Garage Size
2

An elegant, executive home offering plenty of space, and plenty of versatility! Three bedrooms are complemented by a separate office, conveniently located by the front door to enhance work-from-home opportunities. Bi-fold doors provide seamless indoor/outdoor flow from the main living area and ensure alfresco dining will be a regular event in summer, while the cosy lounge – complete with fireplace – is the perfect place to curl up in front of a movie during the winter months.

View Plan