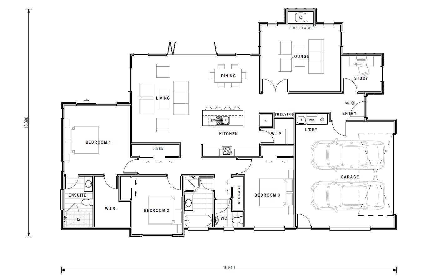
Blake
Number of bedrooms
Bedrooms 3
Number of bathrooms
Bathrooms 2
Number of offices
Offices 1
Number of living spaces
Living spaces 2
Number of toilets
Toilets 2
Carport or Garage Size
Carport or Garage Size 2
Floor size:
202m²

An elegant, executive home offering plenty of space, and plenty of versatility! Three bedrooms are complemented by a separate office, conveniently located by the front door to enhance work-from-home opportunities. Bi-fold doors provide seamless indoor/outdoor flow from the main living area and ensure alfresco dining will be a regular event in summer, while the cosy lounge – complete with fireplace – is the perfect place to curl up in front of a movie during the winter months.

Features
  • Bi-fold doors leading outside
  • Separate office
  • Fireplace in lounge
  • Luxury ensuite and walk-in robe

Related Plans

Kauri Freedom Range 182m²

Number of bedrooms
4
Number of bathrooms
2
Number of Living Spaces
2
Carport or Garage Size
2

Although designed for smaller sites the Kauri is jam-packed full of features! A total of four bedrooms provide an abundance of accommodation, while two bathrooms help make the morning rush-hour run smoothly! There’s plenty of storage (including a walk-in pantry with built-in shelving) as well as a side-entry double garage.

View Plan