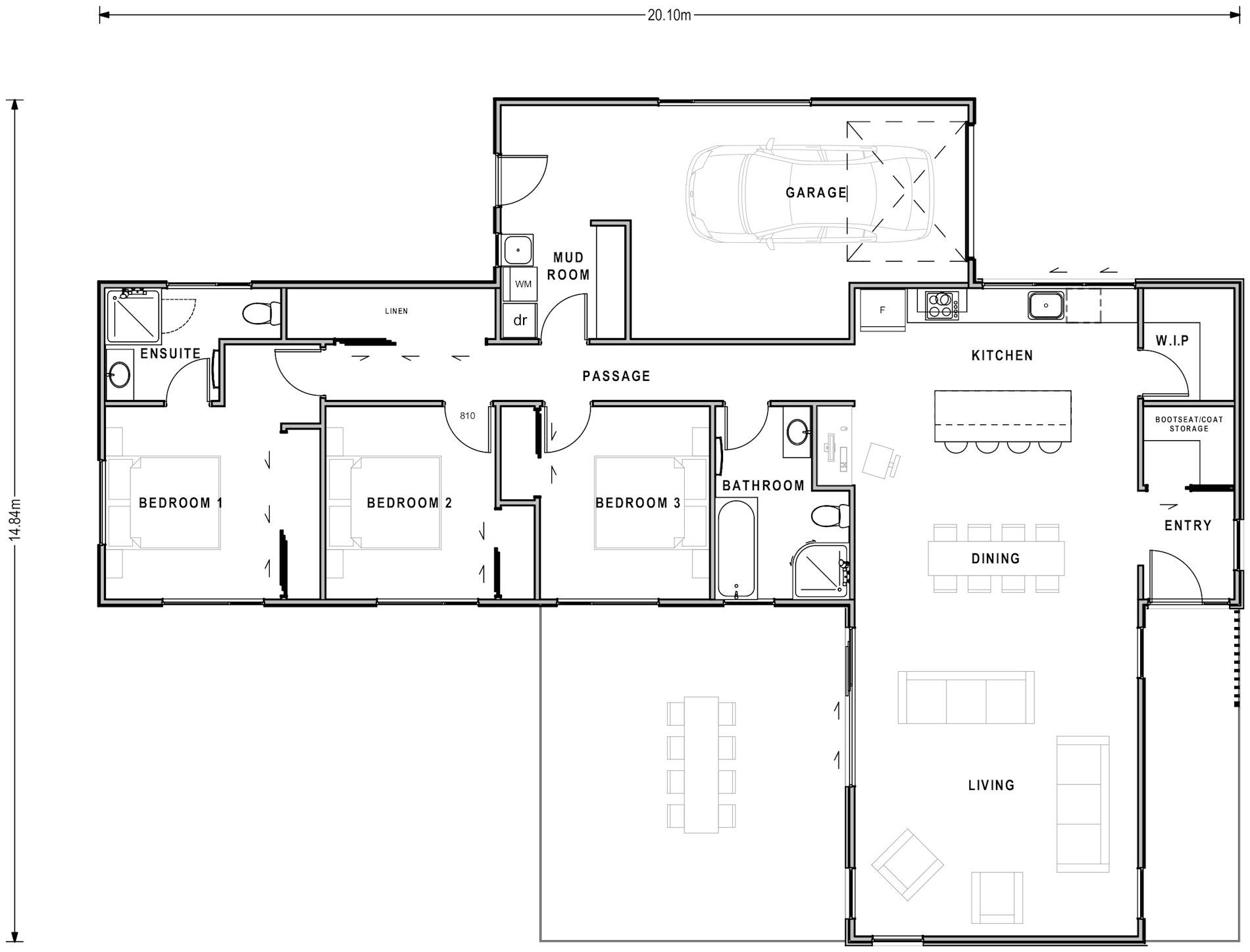
Bellbird
Number of bedrooms
Bedrooms 3
Number of bathrooms
Bathrooms 2
Number of offices
Offices 1
Number of living spaces
Living spaces 1
Number of toilets
Toilets 2
Carport or Garage Size
Carport or Garage Size 1
Floor size:
174m²

All day sun in the three bedrooms and generous open-plan living spaces make this stylish, compact family home a real winner! Exceptional storage, a separate laundry and a mudroom all add to the appeal.

Features
  • Mudroom and separate laundry
  • Additional garage storage
  • Study nook
  • Private entrance way from the street

Related Plans

Weka Freedom Range 120m²

Number of bedrooms
3
Number of bathrooms
2
Number of Living Spaces
1

The kitchen is the hub of this stylish home, while the adjoining living areas mean you can watch the kids while you cook up a storm. There’s plenty of room for entertaining, and a delightful master bedroom complete with ensuite and walk-in wardrobe.

View Plan