Batten
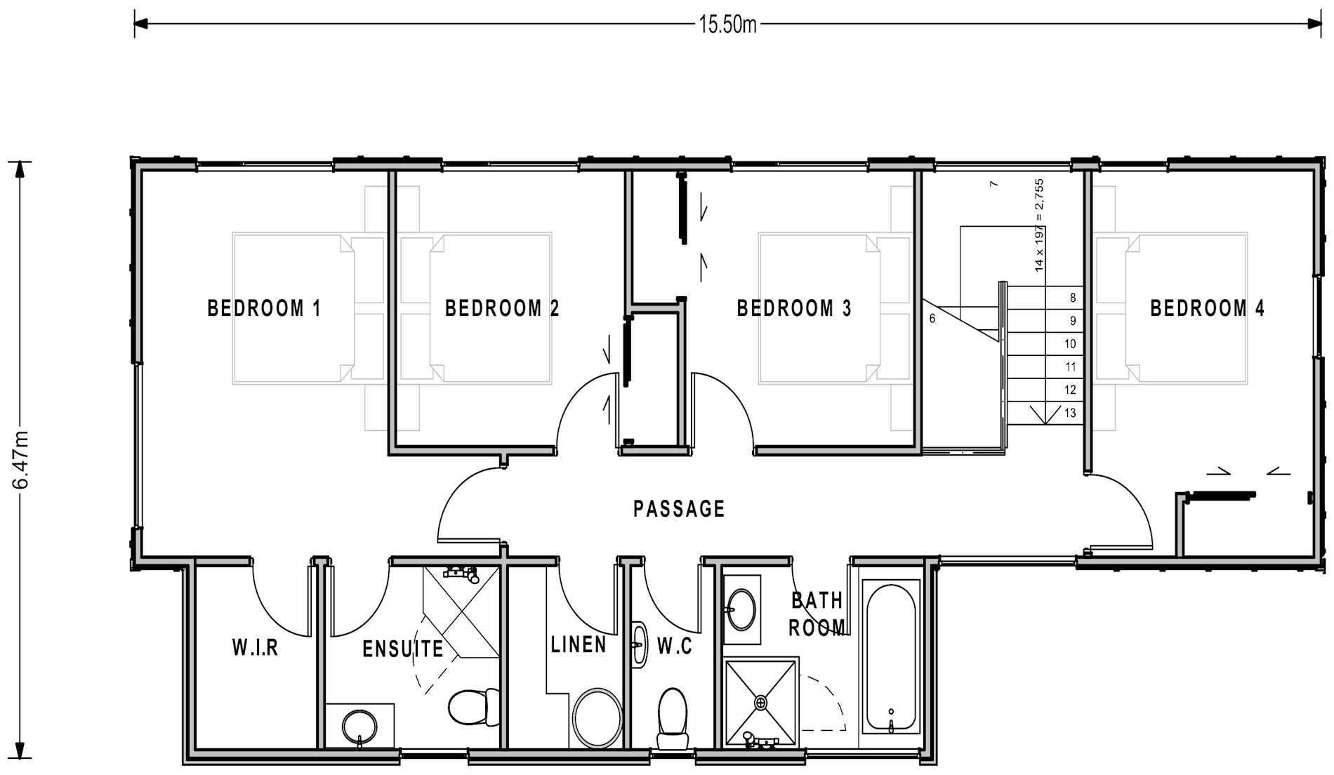
Number of bedrooms
Bedrooms 5
Number of bathrooms
Bathrooms 2
Number of living spaces
Living spaces 2
Number of toilets
Toilets 3
Carport or Garage Size
Carport or Garage Size 2
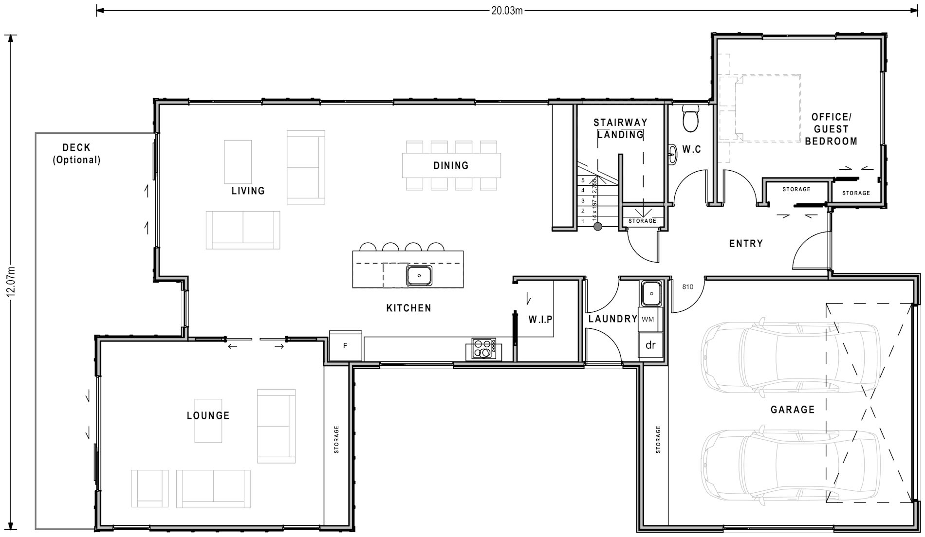
Floor size:
264m²

A generously-proportioned family home with flexi space for either a large office, guest room or fifth bedroom – the choice is yours. The modern open-plan living area and the separate media room offer plenty of versatility, while built-in shelving and lots of storage make it easy to maintain the home’s clean lines.

Features
  • Flexi space for office, hobbies, guest room or fifth bedroom
  • Contemporary exterior
  • Lots of storage

Related Plans

Deans Family Range 230m²

Number of bedrooms
4
Number of bathrooms
2
Number of Living Spaces
2
Carport or Garage Size
2

Designed with ultimate functionality in mind, this generously-proportioned home features expansive living areas which enjoy uninterrupted views across the backyard and garden. The central hub of the Deans is the designer kitchen, complete with large walk-in pantry.

View Plan

Hunter Family Range 229m²

Number of bedrooms
4
Number of bathrooms
2
Number of Living Spaces
2
Carport or Garage Size
2

Ideal for long, narrow sites, the Hunter is a sleek, contemporary home designed for busy modern families. The magnificent chef’s kitchen (with separate pantry and multiple work areas) overlooks the main living spaces, which flow effortlessly outside to the alfresco entertaining area. The main bedroom, which is accompanied by a large walk-in robe (with make-up desk) and a stunning ensuite, is positioned in the opposite wing from the rest of the bedrooms, ensuring the adults will always have a private retreat to escape to. The icing on the cake is the media room – the perfect place to come together for family movie nights!

View Plan