Advantage 50

Advantage 50
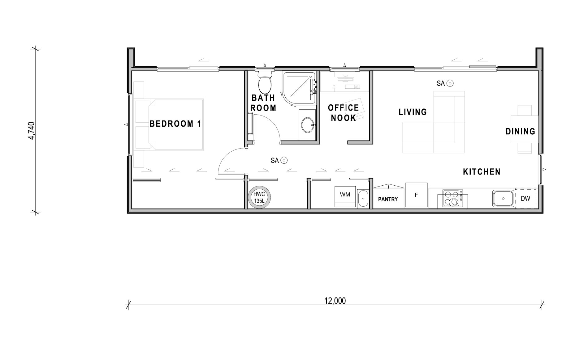
Number of bedrooms
Bedrooms 1
Number of bathrooms
Bathrooms 1
Number of offices
Offices 1
Number of living spaces
Living spaces 1
Number of toilets
Toilets 1
Floor size:
50m²

This contemporary 50m2 small home makes a bold statement with its slim, clean lines. Light and bright, the Advantage 50 would be perfect for either a couple or single, and features a separate office space for those work-from-home opportunities.

Build price

Features
  • One bedroom
  • Generous living
  • Separate office nook

Other plans you may be interested in

Advantage 100 Advantage Range 100m²

Number of bedrooms
2
Number of bathrooms
1
Number of Living Spaces
1
Carport or Garage Size
1

Introducing Advantage 100: Contemporary, spacious, and thoughtfully designed with two bedrooms and flexible living.

View Priced Plan

Build From $317,490*

Advantage 60 Advantage Range 60m²

Number of bedrooms
2
Number of bathrooms
1
Number of Living Spaces
1

The quintessential cottage, this home includes a gorgeous veranda for relaxing on in the summer. 

View Priced Plan

Build From $228,990*