West Coast — Blake

Blake
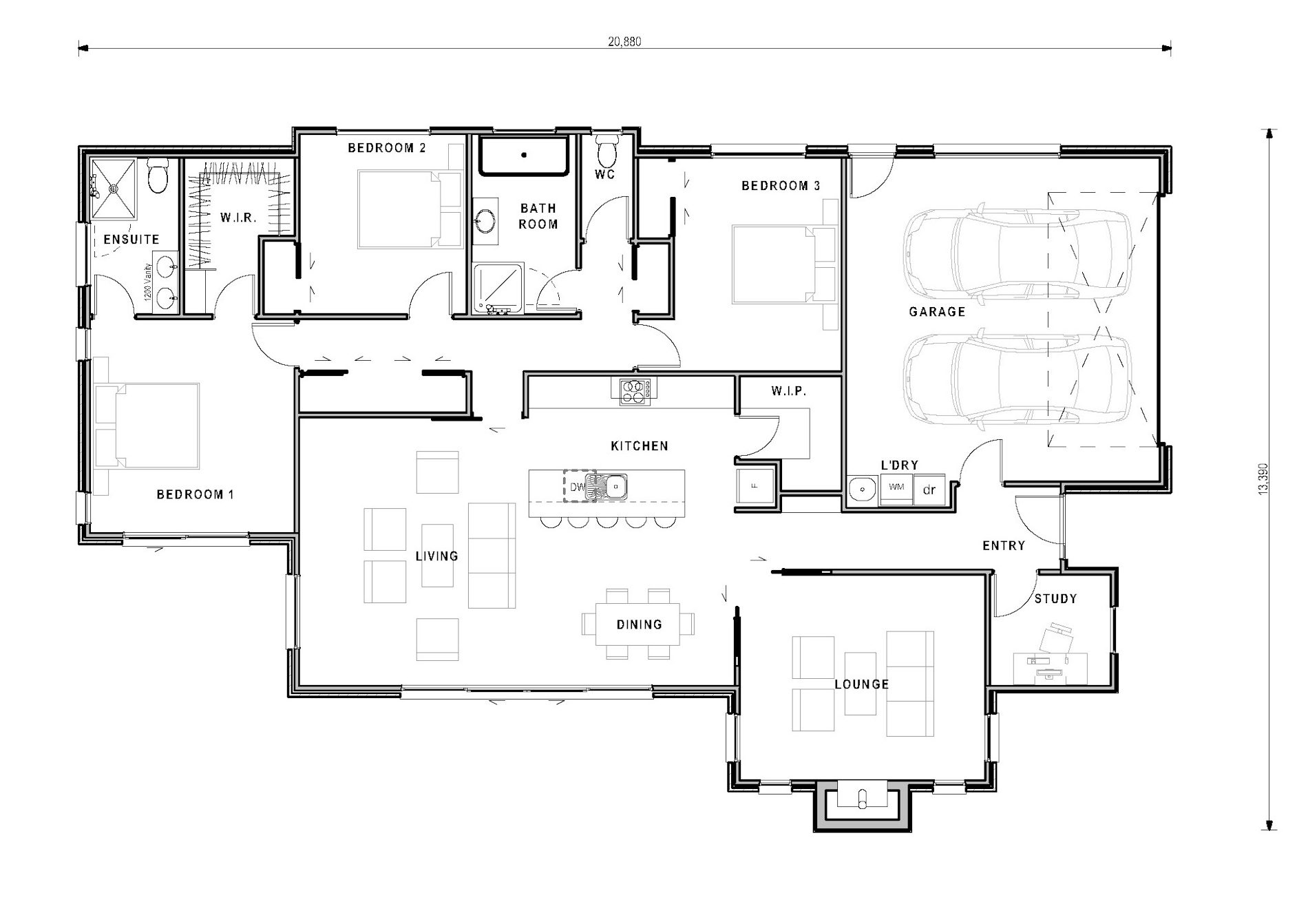
Number of bedrooms
Bedrooms 3
Number of bathrooms
Bathrooms 2
Number of offices
Offices 1
Number of living spaces
Living spaces 2
Number of toilets
Toilets 2
Carport or Garage Size
Carport or Garage Size 2
Floor size:
214m²
This show home is now closed. You can still see us at 26 Weld Street, Hokitika.
Features

14 Racecourse Terrace Rise

This show home is now closed. You can still visit see us at 26 Weld Street, Hokitika.

An elegant, executive home offering plenty of space, and plenty of versatility! Three bedrooms are complemented by a separate office, conveniently located by the front door to enhance work-from-home opportunities. Bi-fold doors provide seamless indoor/outdoor flow from the main living area and ensure alfresco dining will be a regular event in summer, while the cosy lounge – complete with fireplace – is the perfect place to curl up in front of a movie during the winter months.

View more show homes

West Coast – Lambton 199m²

Number of bedrooms
3
Number of bathrooms
2
Number of Living Spaces
2
Carport or Garage Size
2

This show home is now closed. You can still visit see us at 26 Weld Street, Hokitika.

More

West Coast – Munro 220m²

Number of bedrooms
3
Number of bathrooms
2
Number of Living Spaces
2
Carport or Garage Size
2

This show home is now closed. You can still visit see us at 26 Weld Street, Hokitika.

More