Cambridge — Custom

Custom
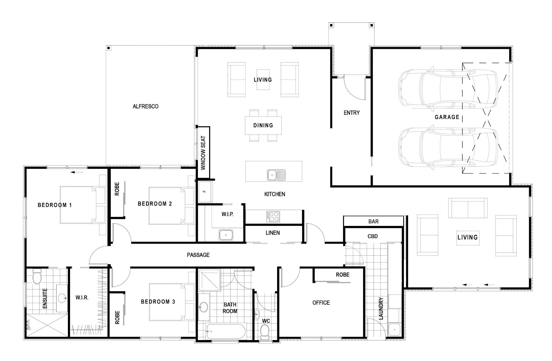
Number of bedrooms
Bedrooms 4
Number of bathrooms
Bathrooms 2
Number of living spaces
Living spaces 2
Number of toilets
Toilets 2
Carport or Garage Size
Carport or Garage Size 2
Floor size:
232m²

Show Home Permanently Closed

Features
  • Raking ceilings in the open plan kitchen/dining areas
  • Remote control operated skylights
  • Underfloor heating throughout
  • Large separate laundry with built in storage

Designed with ultimate functionality in mind, this generously-proportioned home features expansive living areas which enjoy uninterrupted views across the garden and alfresco area. With a built-in bar area, this home is an entertainers dream.

Virtual Tour

Use your mouse to explore the show home.

View other show homes

North Canterbury – Modified Karamu 166m²

Number of bedrooms
3
Number of bathrooms
2
Number of Living Spaces
1
Carport or Garage Size
2

Show Home Permanently Closed

More

Invercargill – Pearse 240m²

Number of bedrooms
4
Number of bathrooms
2
Number of Living Spaces
2
Carport or Garage Size
2

This show home is now closed.

More